highlight_off
Riferimento annuncio 321500 info

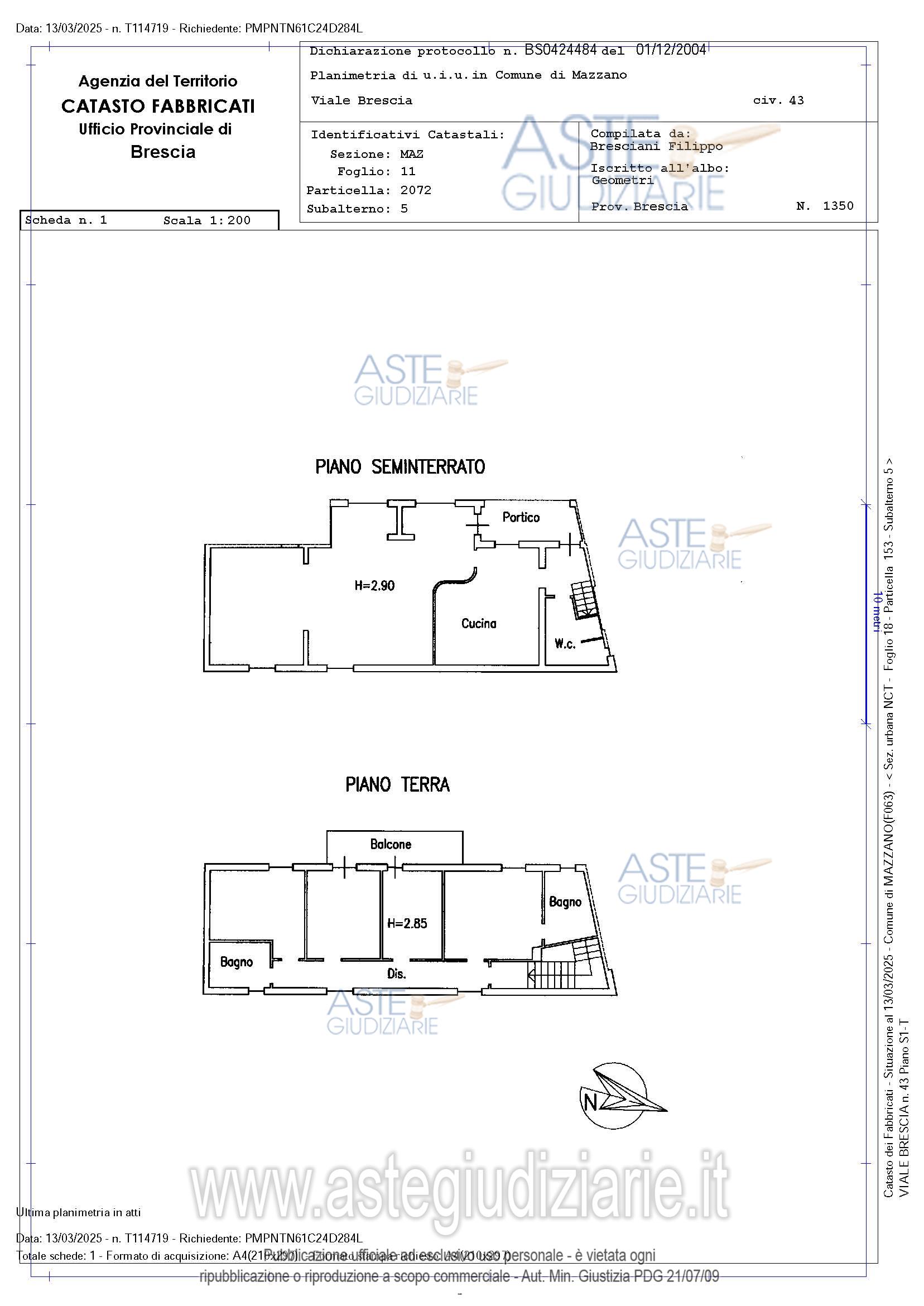
Appartamento Viale Brescia n. 45., 25080 Mazzano (BS)

0
€ 189.771
Vendita all'asta Senza incanto, con gara telematica asincrona - LOTTO UNICO: Piena proprietà di appartamento sviluppantesi ai piani terra/rialzato e seminterrato, dove risulta altresì ubicato il deposito staggito. Prezzo base € 189.771,00 (offerta minima € 142.328,25). Data inizio operazioni di vendita: 06/05/2026 ore 12:00. Professionista delegato alla vendita Rag. Luciana Avrella - Email "sportellopratiche@turellieavrella.com"; Tel. 030222849. Custode Giudiziario Rag. Luciana Avrella - Email "visiteimmobili@anpebrescia.it". Rif. Tribunale di Brescia - Espropriazione immobiliare (cartabia) n. 43/2025

Superficie mq
Vani
Bagni
Piano 0

Tipologia di vendita Giudiziaria
Modalità di vendita Asincrona telematica
Termine presentazione offerte 01/01/1900 ore 00:00
Data e ora inizio gara 06/05/2026 ore 12:00
Codice ID astegiudiziarie.it 4341334
0
€ 189.771

Ti interessa questa vendita?

north_east

Clicca qui per essere indirizzato alla scheda sul sito di provenienza

Bene di astegiudiziarie.it