highlight_off
Riferimento annuncio 307693 info

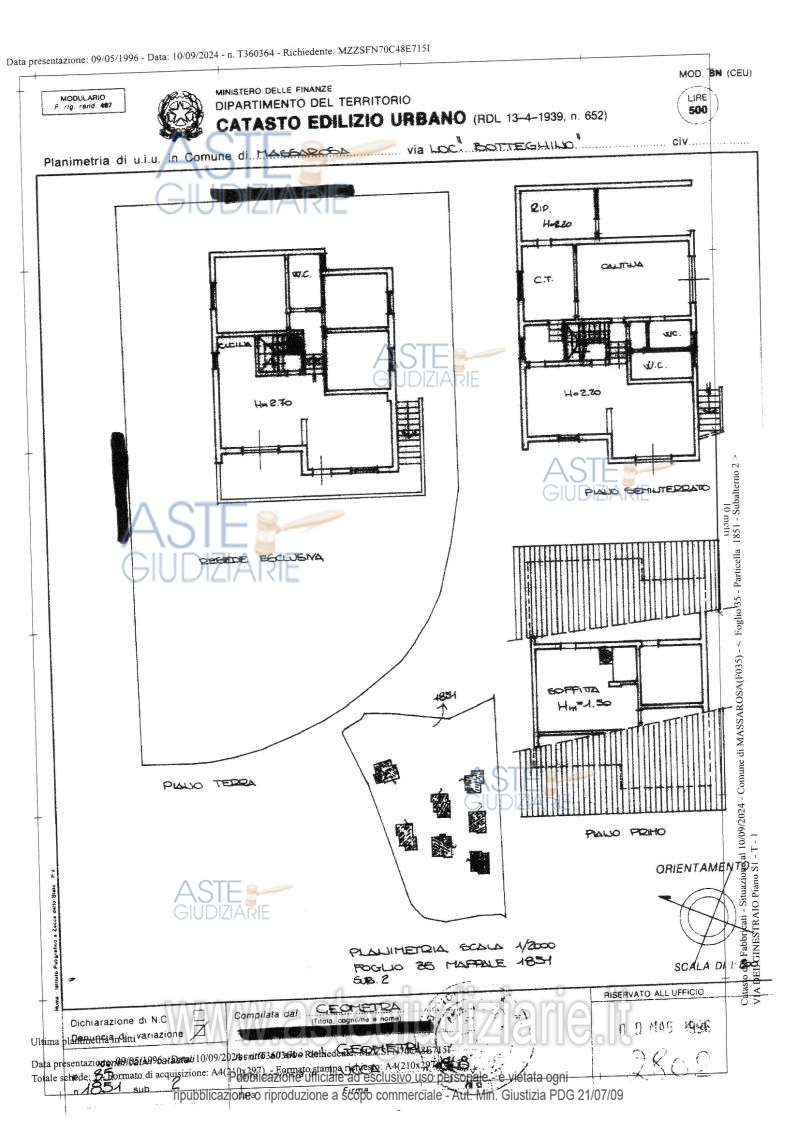
Appartamento Via del Ginestraio n.83, 55054 Massarosa (LU)

8,00
258,26
0
€ 142.908
Vendita all'asta Senza incanto, con gara telematica sincrona mista - LOTTO UNICO: Diritti della piena proprietà gravata dal diritto di abitazione a favore di terzi su villetta per civile abitazione del tipo unifamiliare. Prezzo base € 142.908,00 (offerta minima € 107.181,00). Data vendita 16/12/2025 ore 09:30. Professionista delegato alla vendita Not. Lamberto Giusti - Email "assocnotarilelucca@libero.it"; Tel. 0583957605. Custode Giudiziario Istituto Vendite Giudiziarie Di Lucca - Email "custodieivg@gmail.com"; Tel. 0583418555. Rif. Tribunale di Lucca - Espropriazione immobiliare (cartabia) n. 87/2024

Superficie 258,26 mq
Vani 8,00
Bagni
Piano 0

Tipologia di vendita Giudiziaria
Modalità di vendita Sincrona mista
Termine presentazione offerte 01/01/1900 ore 00:00
Data e ora inizio gara 16/12/2025 ore 09:30
Codice ID astegiudiziarie.it 4329799
8,00
258,26
0
€ 142.908

Ti interessa questa vendita?

north_east

Clicca qui per essere indirizzato alla scheda sul sito di provenienza

Bene di astegiudiziarie.it