highlight_off
Riferimento annuncio 327424 info

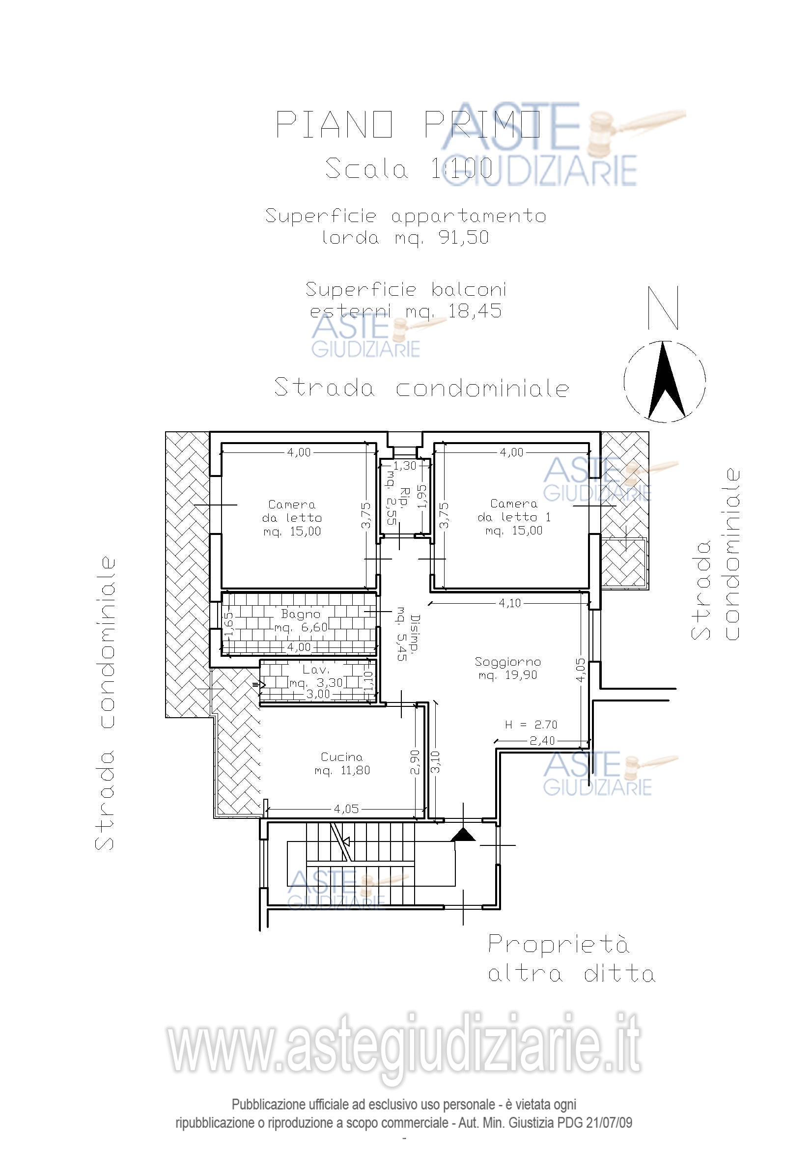
Appartamento Corso S. Vito, 186, 95030 Mascalucia CT, Italia, 95030 Mascalucia (CT)

5,50
96,00
0
€ 45.100
Vendita all'asta Senza incanto, con gara telematica sincrona mista - LOTTO UNICO: Diritto di piena proprietà per la quota di 1/2 su appartamento sito in Mascalucia (CT), Corso San Vito n. 186, posto al piano primo scala 1, e censito al C.F. del Comune di Mascalucia al foglio 16, P.lla 376, Subalterno 4, Categoria A/2, Classe 4, Vani 5,5, superficie catastale mq. 96, rendita catastale € 312,46. Prezzo base € 45.100,00 (offerta minima € 45.100,00). Data vendita 08/05/2026 ore 11:30. Giudice Maria Acagnino. Curatore Avv. Elisabetta Cilia - Email "elisabetta.m.cilia@gmail.com"; Cell. 3381948104. Rif. Tribunale di Catania - Liquidazione controllata(cci) n. 7/2025

Superficie 96,00 mq
Vani 5,50
Bagni
Piano 0

Tipologia di vendita Giudiziaria
Modalità di vendita Sincrona mista
Termine presentazione offerte 07/05/2026 ore 13:00
Data e ora inizio gara 08/05/2026 ore 11:30
Codice ID astegiudiziarie.it 4345617
5,50
96,00
0
€ 45.100

Ti interessa questa vendita?

north_east

Clicca qui per essere indirizzato alla scheda sul sito di provenienza

Bene di astegiudiziarie.it