highlight_off
Riferimento annuncio 333179 info

Appartamento Via Roma, 391, 64014 Martinsicuro TE, Italia, 64014 Martinsicuro (TE)

8,00
205,00
2
0
€ 74.600
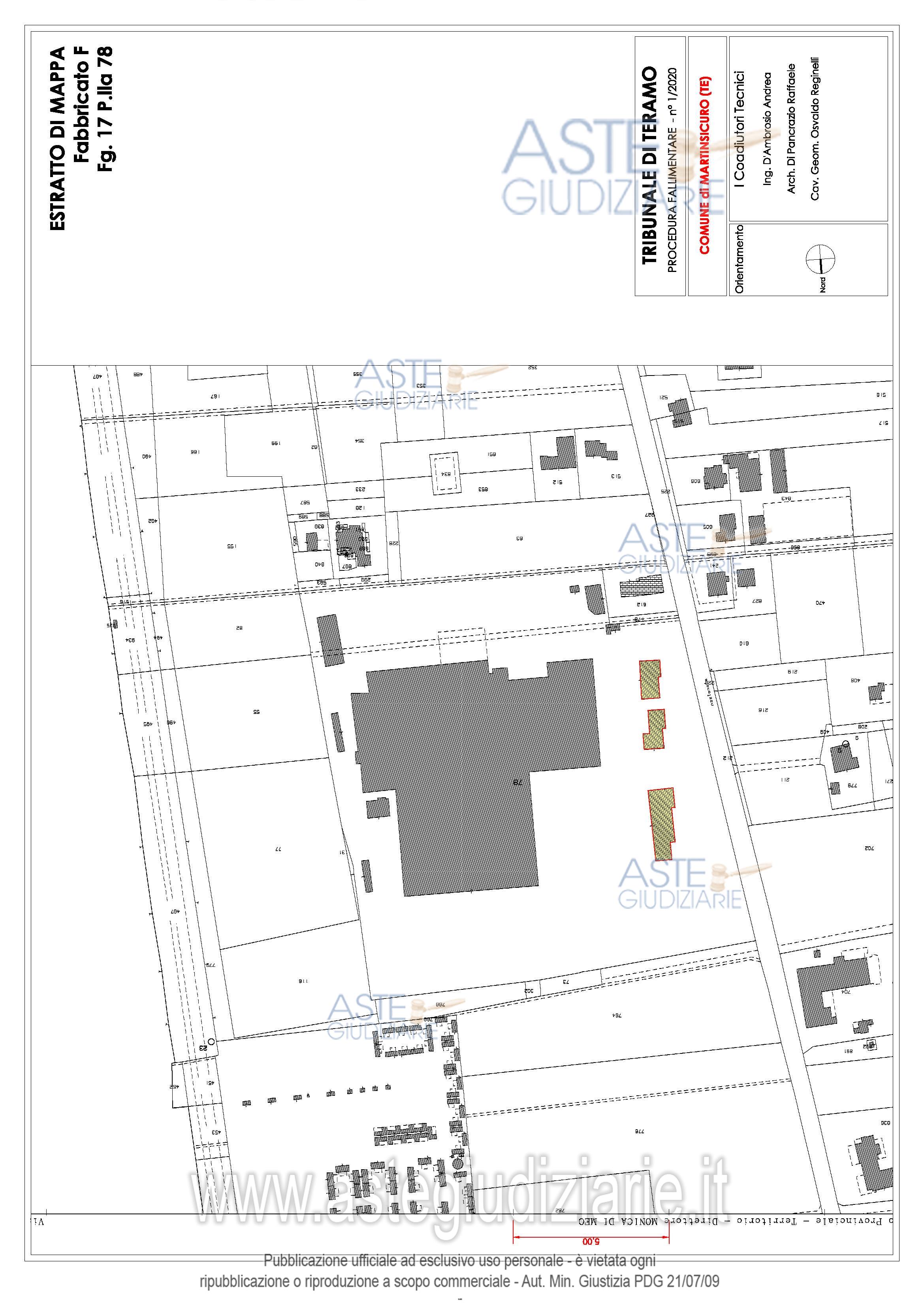
Vendita all'asta Senza incanto, con gara telematica asincrona - LOTTO 7: Appartamento posto al piano primo oltre al locale uso fondaco posto al piano seminterrato e garage al piano seminterrato comune anche ai lotti n. 5, 6 e 8. Prezzo base € 74.600,00 (offerta minima € 74.600,00). Data inizio operazioni di vendita: 17/06/2026 ore 15:00. Custode Giudiziario: Geom. Osvaldo Reginelli - Email "prenotazionivisite@reginelliandpartners.com"; Cell. 339/8575170. Curatore: Dott. Massimo Mancinelli - Email "mancinelli@studiomancinelli.net". Rif. Tribunale di Teramo - Fallimentare (nuovo rito) n. 1/2020

Superficie 205,00 mq
Vani 8,00
Bagni 2
Piano 0

Tipologia di vendita Giudiziaria
Modalità di vendita Asincrona telematica
Termine presentazione offerte 16/06/2026 ore 23:59
Data e ora inizio gara 17/06/2026 ore 15:00
Codice ID astegiudiziarie.it 4350532
8,00
205,00
2
0
€ 74.600

Ti interessa questa vendita?

north_east

Clicca qui per essere indirizzato alla scheda sul sito di provenienza

Bene di astegiudiziarie.it