highlight_off
Riferimento annuncio 321699 info

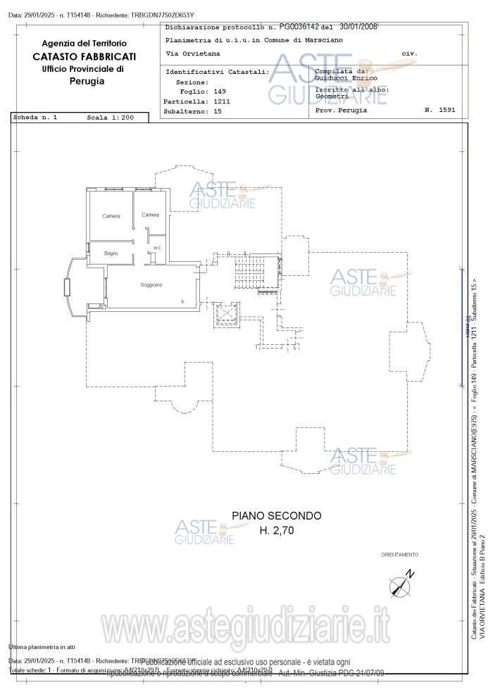
Appartamento V. Orvietana, 9, 06055 Marsciano PG, Italia, 06055 Marsciano (PG)

5,50
110,00
0
€ 90.000
Vendita all'asta Senza incanto, con gara telematica sincrona mista - LOTTO 2: MARSCIANO (PG) VIA ORVIETANA N. 9 LOTTO 2. Prezzo base € 90.000,00 (offerta minima € 67.500,00). Data vendita 06/03/2026 ore 09:00. Giudice Alberto Cappellini. Professionista delegato alla vendita Massimo Sabatini - Email "info@avvocatosabatini.it"; Tel. 074348853. Custode Giudiziario Ivg Perugia - Email "visite@ivgumbria.com"; Tel. 0755913525. Rif. Tribunale di Spoleto - Espropriazione immobiliare (cartabia) n. 111/2024

Superficie 110,00 mq
Vani 5,50
Bagni
Piano 0

Tipologia di vendita Giudiziaria
Modalità di vendita Sincrona mista
Termine presentazione offerte 01/01/1900 ore 00:00
Data e ora inizio gara 06/03/2026 ore 09:00
Codice ID astegiudiziarie.it 4341458
5,50
110,00
0
€ 90.000

Ti interessa questa vendita?

north_east

Clicca qui per essere indirizzato alla scheda sul sito di provenienza

Bene di astegiudiziarie.it