highlight_off
Riferimento annuncio 321698 info

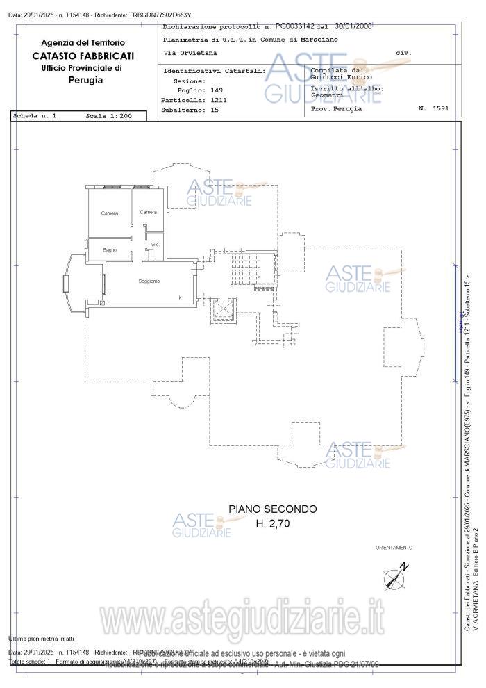
Appartamento V. Orvietana, 9, 06055 Marsciano PG, Italia, 06055 Marsciano (PG)

4,00
80,00
0
€ 80.000
Vendita all'asta Senza incanto, con gara telematica sincrona mista - LOTTO 1: MARSCIANO (PG) VIA ORVIETANA N. 9 LOTTO 1. Prezzo base € 80.000,00 (offerta minima € 60.000,00). Data vendita 06/03/2026 ore 09:00. Giudice Alberto Cappellini. Professionista delegato alla vendita Massimo Sabatini - Email "info@avvocatosabatini.it"; Tel. 074348853. Custode Giudiziario Ivg Perugia - Email "visite@ivgumbria.com"; Tel. 0755913525. Rif. Tribunale di Spoleto - Espropriazione immobiliare (cartabia) n. 111/2024

Superficie 80,00 mq
Vani 4,00
Bagni
Piano 0

Tipologia di vendita Giudiziaria
Modalità di vendita Sincrona mista
Termine presentazione offerte 01/01/1900 ore 00:00
Data e ora inizio gara 06/03/2026 ore 09:00
Codice ID astegiudiziarie.it 4341457
4,00
80,00
0
€ 80.000

Ti interessa questa vendita?

north_east

Clicca qui per essere indirizzato alla scheda sul sito di provenienza

Bene di astegiudiziarie.it