highlight_off
Riferimento annuncio 283357 info

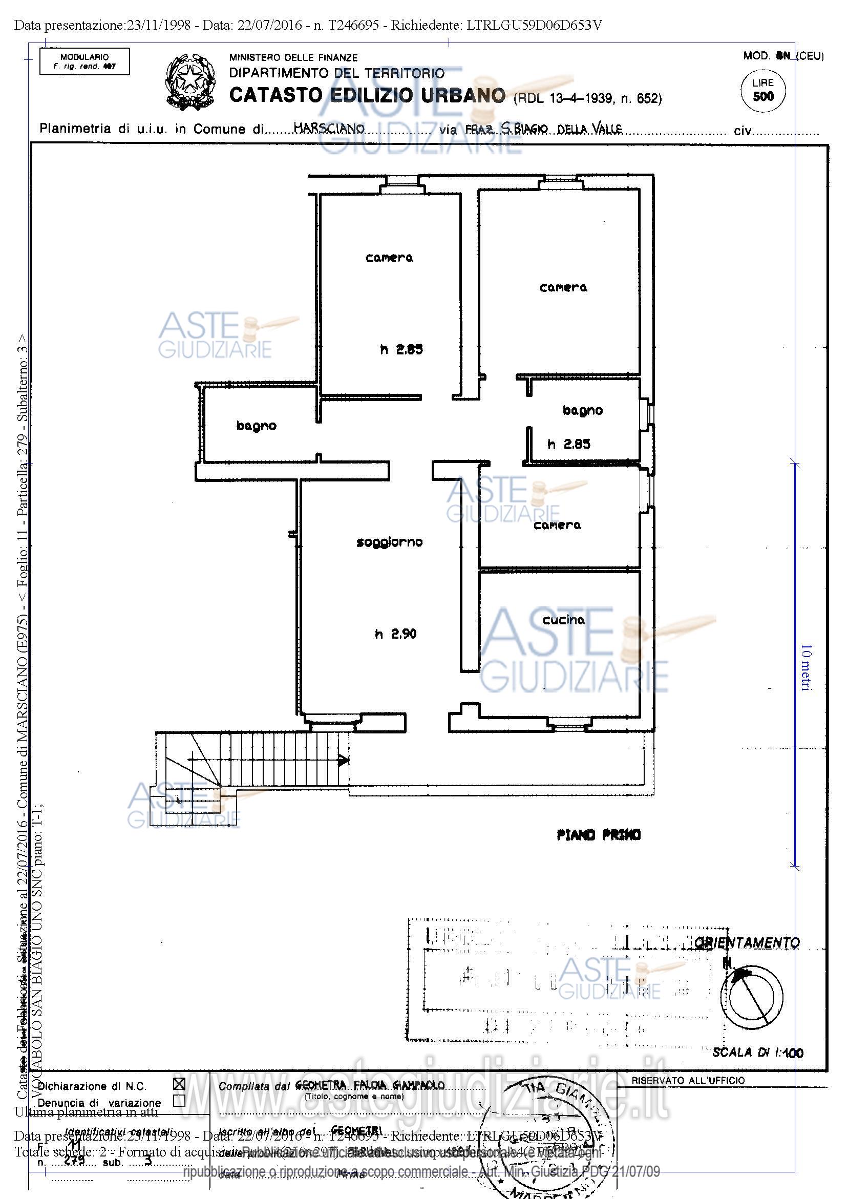
Appartamento San Biagio della Valle PG, Italia, 06055 Marsciano (PG)

10,00
200,00
0
€ 60.000
Vendita all'asta Senza incanto, con gara telematica sincrona mista - LOTTO 2: MARSCIANO (PG) LOC. SAN BIAGIO DELLA VALLE LOTTO 2. Prezzo base € 60.000,00 (offerta minima € 45.000,00). Data vendita 11/12/2025 ore 12:00. Giudice Alberto Cappellini. Professionista delegato alla vendita Avv. Lucia Cretoni - Email "lucia.cretoni@gmail.com"; Tel. 0743260728. Custode Giudiziario Ivg Perugia - Email "visite@ivgumbria.com"; Tel. 0755913525. Rif. Tribunale di Spoleto - Esecuzione immobiliare post legge 80 n. 59/2014

Superficie 200,00 mq
Vani 10,00
Bagni
Piano 0

Tipologia di vendita Giudiziaria
Modalità di vendita Sincrona mista
Termine presentazione offerte 01/01/1900 ore 00:00
Data e ora inizio gara 11/12/2025 ore 12:00
Codice ID astegiudiziarie.it 4311077
10,00
200,00
0
€ 60.000

Ti interessa questa vendita?

north_east

Clicca qui per essere indirizzato alla scheda sul sito di provenienza

Bene di astegiudiziarie.it