highlight_off
Riferimento annuncio 333337 info

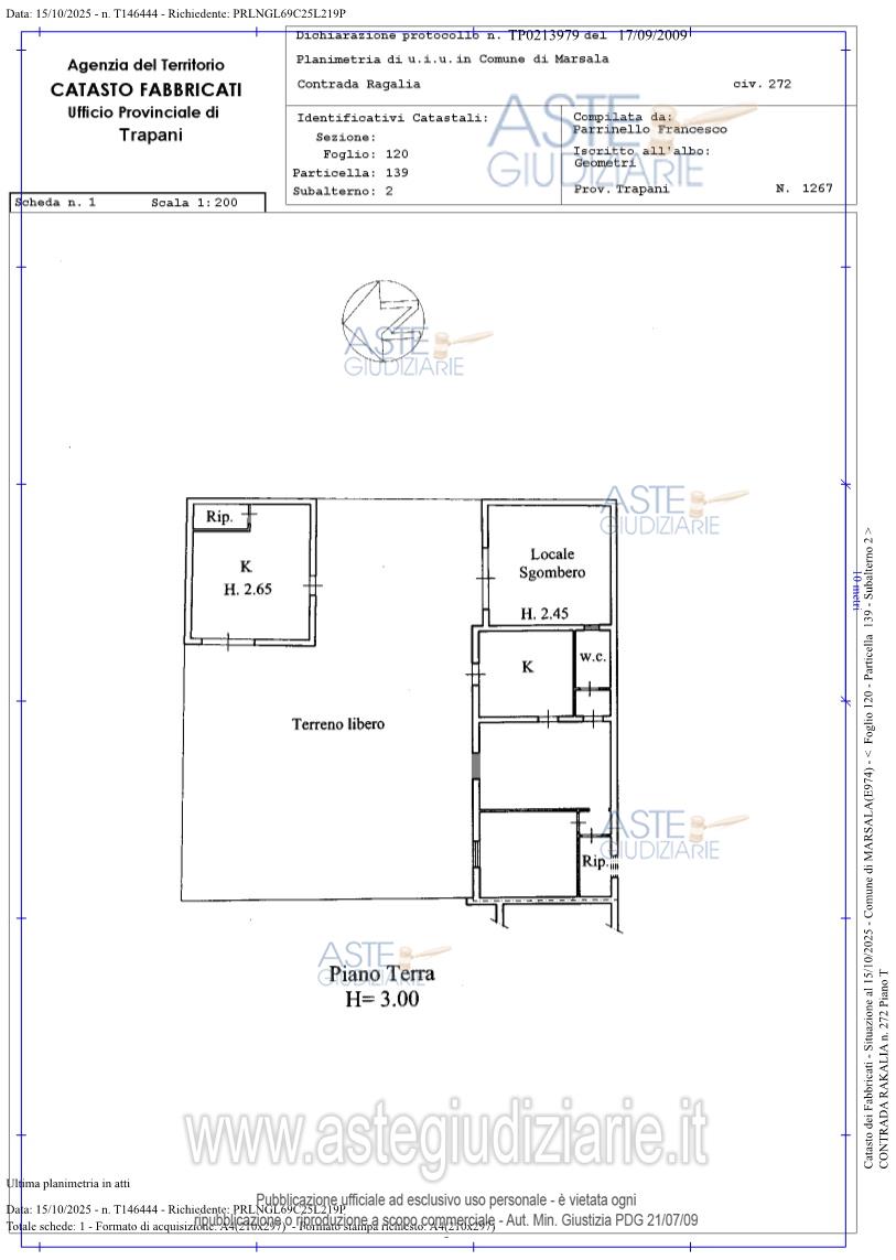
Appartamento C/Da Rakalia 272, 91025 Marsala (TP)

825,00
0
€ 81.500
Vendita all'asta Senza incanto, con gara telematica asincrona - LOTTO UNICO: Fabbricato civile abitazione in Marsala (TP) c/da Rakalia n 272, composto da due abitazioni ed un locale sgombero, sviluppato su un unico piano fuori terra (piano terra) insistente su lotto di terreno di complessivi 825 mq circa (superficie catastale), comprensivo dell’area di sedime.L’immobile risulta censito presso il N.C.E.U. del Comune di Marsala al foglio di mappa n.120, particella n.139, subalterni 1 e 2, nonché presso il N.C.T. del medesimo Comune al foglio di mappa n.120, particella n.139. Prezzo base € 81.500,00 (offerta minima € 61.125,00). Data inizio operazioni di vendita: 15/07/2026 ore 16:30. Giudice: Francesco Giardina. Professionista delegato alla vendita: Avv. Francesco Carini - Email "carini.francesco@ymail.com"; Tel. 0923/716293; Cell. 328/6192565. Custode Giudiziario: Avv. Francesco Carini - Email "carini.francesco@ymail.com"; Tel. 0923/716293; Cell. 328/6192565. Rif. Tribunale di Marsala - Espropriazione immobiliare (cartabia) n. 94/2025

Superficie 825,00 mq
Vani
Bagni
Piano 0

Tipologia di vendita Giudiziaria
Modalità di vendita Asincrona telematica
Termine presentazione offerte 14/07/2026 ore 23:59
Data e ora inizio gara 15/07/2026 ore 16:30
Codice ID astegiudiziarie.it 4350566
825,00
0
€ 81.500

Ti interessa questa vendita?

north_east

Clicca qui per essere indirizzato alla scheda sul sito di provenienza

Bene di astegiudiziarie.it