highlight_off
Riferimento annuncio 293815 info

Appartamento Corso Umberto I, 36, 80034 Marigliano NA, Italia, 80034 Marigliano (NA)

7,00
207,02
0
€ 127.688
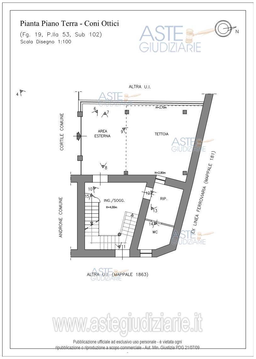
Vendita all'asta Senza incanto, con gara telematica asincrona - LOTTO UNICO: Piena ed intera prop. di unità abitativa, su due livelli, piano terra e primo, collegati per mezzo di una scala interna, e di un’area esterna di pertinenza esclusiva in parte coperta da una tettoia. L’unità abitativa al piano terra è articolata da: cortile interno comune; ingresso/soggiorno; ripostiglio; wc; area esterna esclusiva. Al piano primo da: salone; cucina con altra porta d’ingresso (2° entrata) e balconcino; 2 camere da letto, balcone comunicante con terrazziono, wc. Prezzo base € 127.687,50 (offerta minima € 95.765,62). Data inizio operazioni di vendita: 18/11/2025 ore 16:00. Professionista delegato alla vendita Avv. Vincenzo Barone - Email "avv.vincenzobarone@gmail.com"; Cell. 3475624953; Tel. 3475624953. Custode Giudiziario Avv. Vincenzo Barone - Email "avv.vincenzobarone@gmail.com"; Cell. 3475624953; Tel. 3475624953. Rif. Tribunale di Nola - Espropriazione immobiliare (cartabia) n. 119/2023

Superficie 207,02 mq
Vani 7,00
Bagni
Piano 0

Tipologia di vendita Giudiziaria
Modalità di vendita Asincrona telematica
Termine presentazione offerte 01/01/1900 ore 00:00
Data e ora inizio gara 18/11/2025 ore 16:00
Codice ID astegiudiziarie.it 4319105
7,00
207,02
0
€ 127.688

Ti interessa questa vendita?

north_east

Clicca qui per essere indirizzato alla scheda sul sito di provenienza

Bene di astegiudiziarie.it