highlight_off
Riferimento annuncio 229291 info

Appartamento via Domenico Santoro 79, 81025 Marcianise (CE)

59,00
0
€ 12.363
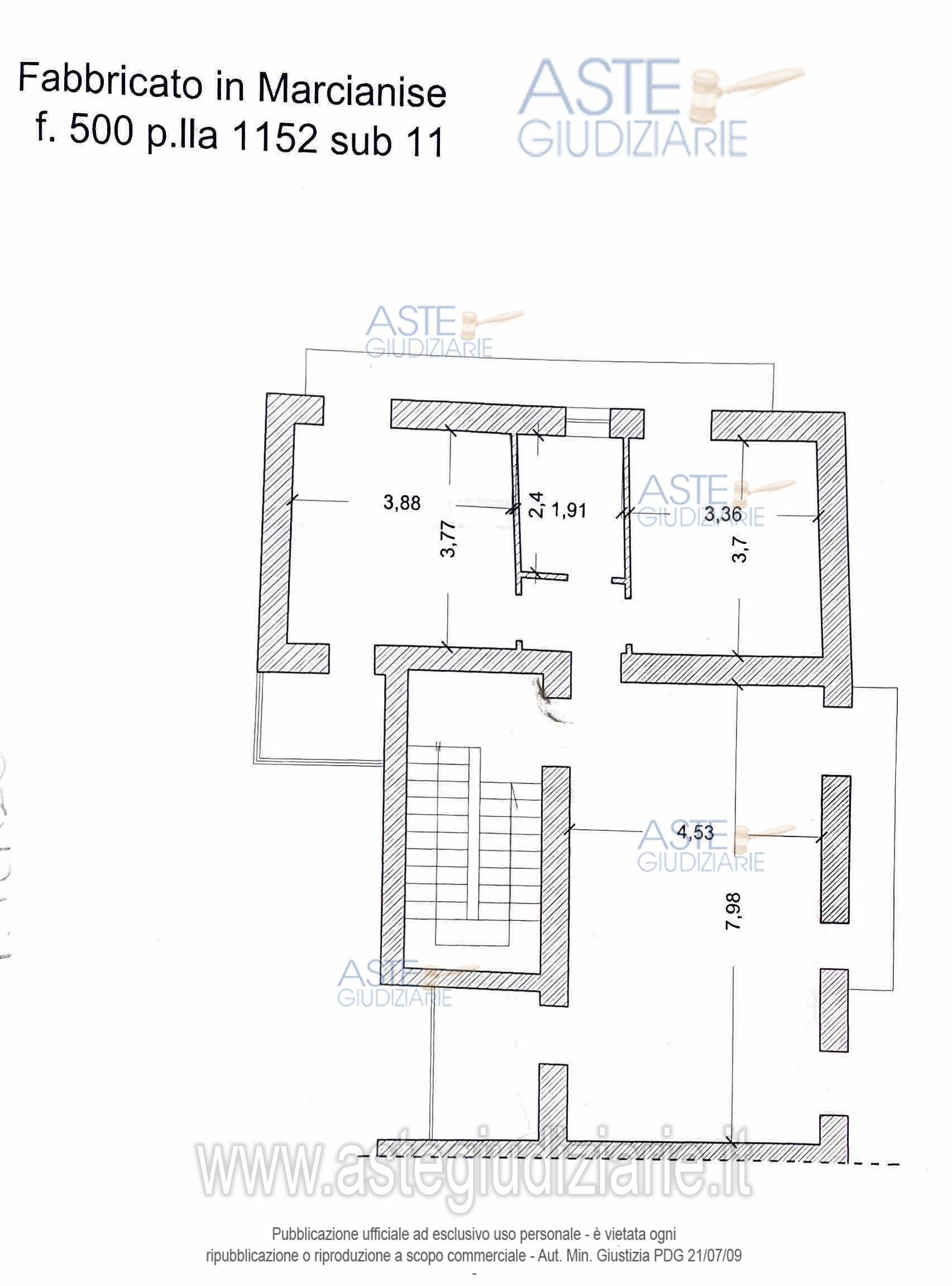
Vendita in attesa dell'emissione del nuovo bando d'asta. LOTTO 3: Piena e perfetta proprietà dell’appartamento ad uso civile abitazione, posto al piano terzo del maggior fabbricato avente accesso dalla via Domenico Santoro 79, della superficie complessiva di metri quadri 59 circa, composto di: un locale cucina, una camera da letto, un locale wc, un disimpegno, una veranda ed un terrazzo/deposito. Ultimo prezzo base € 12.362,90 (offerta minima € 12.362,90). Giudice Dott. Ambra Alvano. Professionista delegato alla vendita Dott. Giuseppe Savona - Tel. 081 5517801. Curatore Dott. Giuseppe Savona. Rif. Tribunale di Santa Maria Capua Vetere - Fallimentare n. 6677/1993

Superficie 59,00 mq
Vani
Bagni
Piano 0

Tipologia di vendita Giudiziaria
Modalità di vendita Asincrona telematica
Termine presentazione offerte 15/10/2025 ore 12:00
Data e ora inizio gara 16/10/2025 ore 11:00
Codice ID astegiudiziarie.it 4274985
59,00
0
€ 12.363

Ti interessa questa vendita?

north_east

Clicca qui per essere indirizzato alla scheda sul sito di provenienza

Bene di astegiudiziarie.it