highlight_off
Riferimento annuncio 263749 info

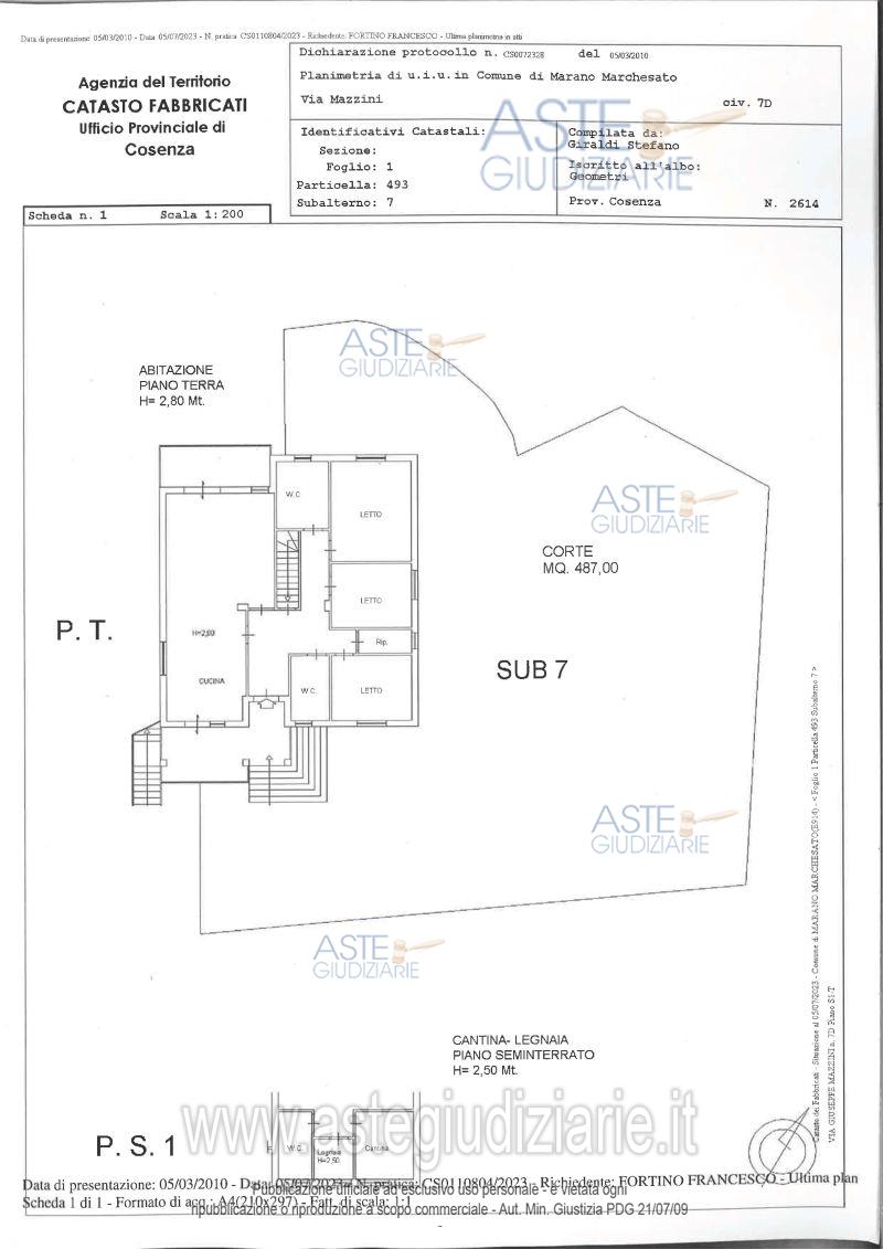
Appartamento via G. Mazzini, 7, 87040 Marano Marchesato (CS)

0
€ 76.032
Vendita all'asta Senza incanto, con gara telematica sincrona mista - LOTTO 2: Abitazione al piano Terra/rialzato e locale seminterrato, catastalmente parte legnaia e parte garage, indivisi, e corte esclusiva. Prezzo base € 76.032,00 (offerta minima € 57.024,00). Data vendita 28/11/2025 ore 09:45. Giudice Dott. Assunta Gioia. Professionista delegato alla vendita Avv. Annalisa Perna - Email "annalisaperna@yahoo.it"; Tel. 3398717984. Custode Giudiziario Avv. Annalisa Perna - Email "annalisaperna@yahoo.it"; Tel. 3398717984. Rif. Tribunale di Cosenza - Esecuzione immobiliare post legge 80 n. 173/2022

Superficie mq
Vani
Bagni
Piano 0

Tipologia di vendita Giudiziaria
Modalità di vendita Sincrona mista
Termine presentazione offerte 01/01/1900 ore 00:00
Data e ora inizio gara 28/11/2025 ore 09:45
Codice ID astegiudiziarie.it 4297443
0
€ 76.032

Ti interessa questa vendita?

north_east

Clicca qui per essere indirizzato alla scheda sul sito di provenienza

Bene di astegiudiziarie.it