highlight_off
Riferimento annuncio 268428 info

Appartamento Via Trieste, 8, 46100 Mantova MN, Italia, 46100 Mantova (MN)

7,00
201,00
2
2
€ 139.135
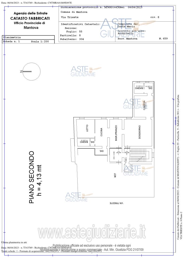
Vendita all'asta Senza incanto, con gara telematica sincrona mista - LOTTO 7: Il “Lotto 7” è costituito da:- Bene n. 7: Appartamento posto al piano secondo (con ascensore) di palazzo storico condominiale e composto da ingresso-sala da pranzo, cucina, soggiorno, due bagni, camera da letto, altra camera e tre disimpegni;- Bene n. 13: Cantina pertinenziale posta al piano interrato (con ascensore) del medesimo palazzo storico condominiale;- Bene n. 16: Posto auto pertinenziale sito al piano terra, nel cortile interno del medesimo palazzo storico condominiale. Prezzo base € 139.135,00 (offerta minima € 104.352,00). Data vendita 21/11/2025 ore 10:00. Professionista delegato alla vendita Dott. Stefania Malerba - Email "stefania@studiomalerba.eu"; Cell. 3356677909; Tel. 0376439318. Custode Giudiziario Franco Procissi - Email "immobiliaremantova@sovemo.com"; Tel. 0376220694. Rif. Tribunale di Mantova - Esecuzione immobiliare post legge 80 n. 107/2022

Superficie 201,00 mq
Vani 7,00
Bagni 2
Piano 2

Tipologia di vendita Giudiziaria
Modalità di vendita Sincrona mista
Termine presentazione offerte 01/01/1900 ore 00:00
Data e ora inizio gara 21/11/2025 ore 10:00
Codice ID astegiudiziarie.it 4291022
7,00
201,00
2
2
€ 139.135

Ti interessa questa vendita?

north_east

Clicca qui per essere indirizzato alla scheda sul sito di provenienza

Bene di astegiudiziarie.it