highlight_off
Riferimento annuncio 157912 info

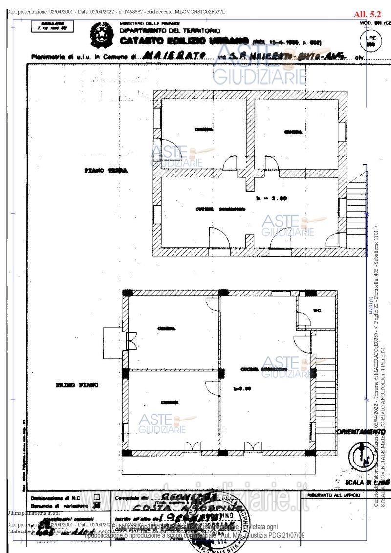
Appartamento Vico P. Valente, snc, 89843 Maierato (VV)

4,50
65,50
1
1
€ 13.326
Vendita all'asta Senza incanto, con gara telematica sincrona mista - LOTTO 1: Piena proprietà di appartamento al piano primo di un fabbricato, della superficie interna utile di 65,5 mq circa. Prezzo base € 13.326,00 (offerta minima € 9.994,50). Data vendita 22/04/2026 ore 11:00. Giudice Dott. Giulia Orefice. Professionista delegato alla vendita Avv. Antonella Misiti - Email "avv.antonellamisiti@alice.it"; Tel. 0963471598. Custode Giudiziario Avv. Antonella Misiti - Email "avv.antonellamisiti@alice.it"; Tel. 0963471598. Rif. Tribunale di Vibo Valentia - Esecuzione immobiliare post legge 80 n. 2/2022

Superficie 65,50 mq
Vani 4,50
Bagni 1
Piano 1

Tipologia di vendita Giudiziaria
Modalità di vendita Sincrona mista
Termine presentazione offerte 01/01/1900 ore 00:00
Data e ora inizio gara 22/04/2026 ore 11:00
Codice ID astegiudiziarie.it 4261804
4,50
65,50
1
1
€ 13.326

Ti interessa questa vendita?

north_east

Clicca qui per essere indirizzato alla scheda sul sito di provenienza

Bene di astegiudiziarie.it