highlight_off
Riferimento annuncio 315926 info

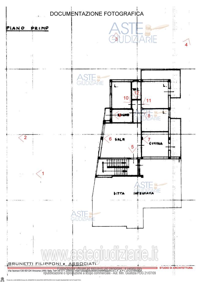
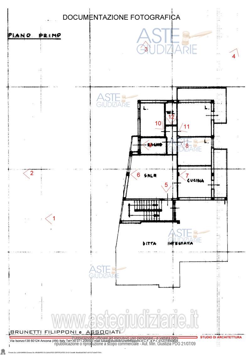
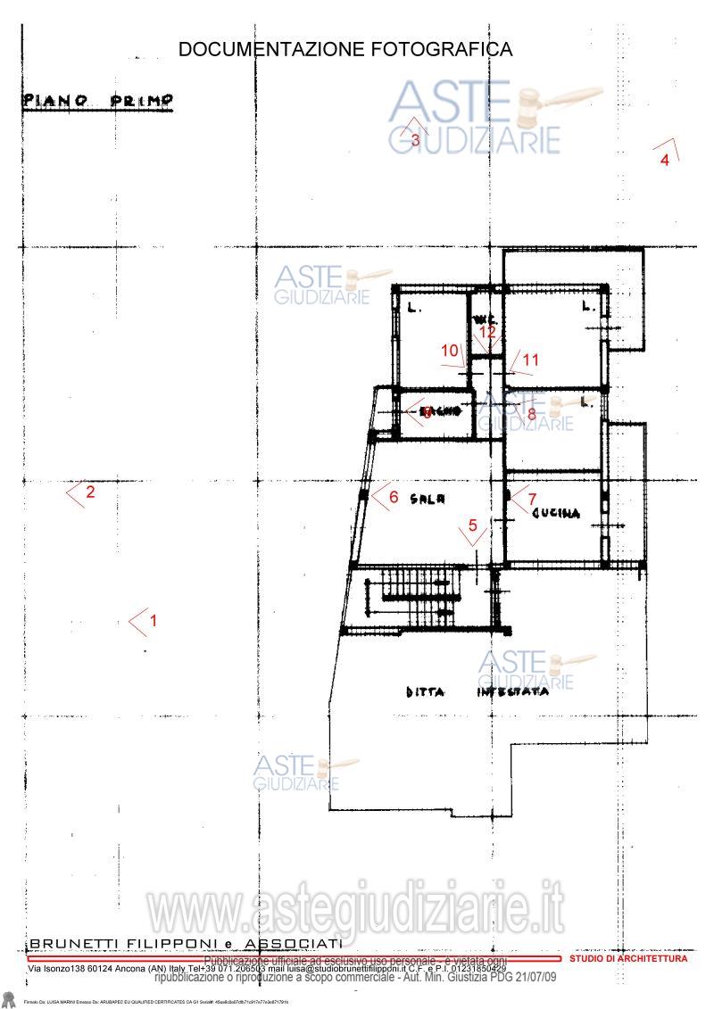
Appartamento Via dei Tigli, 1, 60025 Loreto AN, Italia, 60025 Loreto (AN)

6,50
130,00
0
€ 138.400
Vendita all'asta Senza incanto, con gara telematica asincrona - LOTTO UNICO: Piena proprietà di un appartamento a piano primo di un immobile a destinazione residenziale su tre piani fuori terra oltre a piano seminterrato e piano sottotetto. Prezzo base € 138.400,00 (offerta minima € 103.800,00). Data inizio operazioni di vendita: 20/11/2025 ore 12:45. Professionista delegato alla vendita Avv. Daniela Baldinelli - Email "danielabaldinelli@gmail.com"; Tel. 0717925768. Custode Giudiziario Avv. Daniela Baldinelli - Email "danielabaldinelli@gmail.com"; Tel. 0717925768. Rif. Tribunale di Ancona - Espropriazione immobiliare (cartabia) n. 276/2024

Superficie 130,00 mq
Vani 6,50
Bagni
Piano 0

Tipologia di vendita Giudiziaria
Modalità di vendita Asincrona telematica
Termine presentazione offerte 19/11/2025 ore 12:00
Data e ora inizio gara 20/11/2025 ore 12:45
Codice ID astegiudiziarie.it 4336829
6,50
130,00
0
€ 138.400

Ti interessa questa vendita?

north_east

Clicca qui per essere indirizzato alla scheda sul sito di provenienza

Bene di astegiudiziarie.it