highlight_off
Riferimento annuncio 321487 info

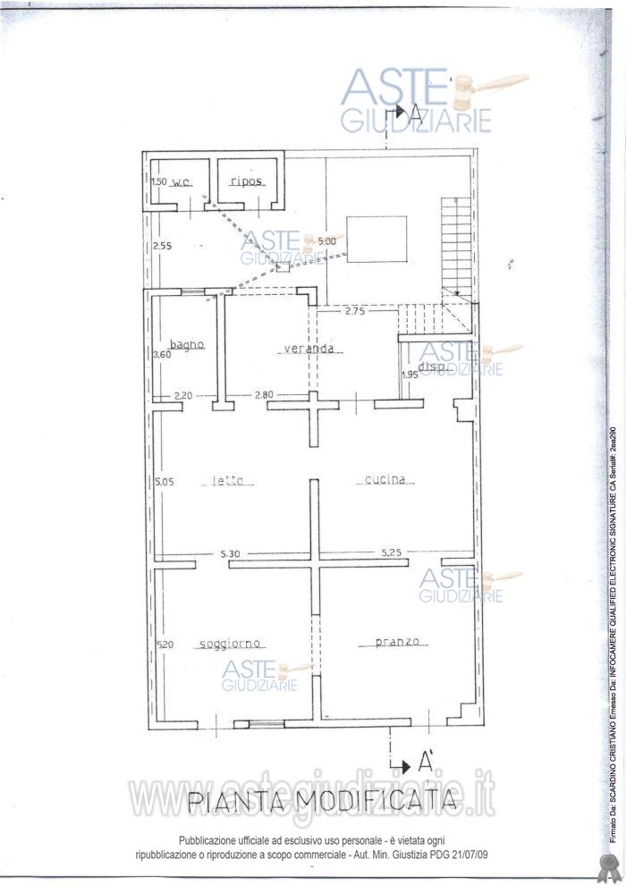
Appartamento Via Vittorio Veneto, 50, 73023 Lizzanello LE, Italia, 73023 Lizzanello (LE)

5,50
160,30
0
€ 79.841
Vendita all'asta Senza incanto, con gara telematica asincrona - LOTTO UNICO: Piena proprietà per la quota di 1/1 di fabbricato a destinazione residenziale, sito in Lizzanello (Le) alla via Vittorio Veneto n. 50, della superficie commerciale di 160,30 mq. Prezzo base € 79.840,50 (offerta minima € 59.880,37). Data inizio operazioni di vendita: 18/05/2026 ore 16:00. Giudice: Antonio Barbetta. Professionista delegato alla vendita: Avv. Giovanna Piera Pedone - Email "avv.giampierapedone@yahoo.it"; Tel. 0832/524046; Cell. 340/3785327. Custode Giudiziario: Avv. Giovanna Piera Pedone - Email "avv.giampierapedone@yahoo.it"; Tel. 0832/524046; Cell. 340/3785327. Rif. Tribunale di Lecce - Espropriazione immobiliare (cartabia) n. 322/2024

Superficie 160,30 mq
Vani 5,50
Bagni
Piano 0

Tipologia di vendita Giudiziaria
Modalità di vendita Asincrona telematica
Termine presentazione offerte 01/01/1900 ore 00:00
Data e ora inizio gara 18/05/2026 ore 16:00
Codice ID astegiudiziarie.it 4341040
5,50
160,30
0
€ 79.841

Ti interessa questa vendita?

north_east

Clicca qui per essere indirizzato alla scheda sul sito di provenienza

Bene di astegiudiziarie.it