Riferimento annuncio 332664
Appartamento Scali Enrico Cialdini, 57100 Livorno (LI)
4
104
1
3
€ 250.000
PORTO Scali Cialdini: Quandrilocale con splendida vista fronte porto/mare.
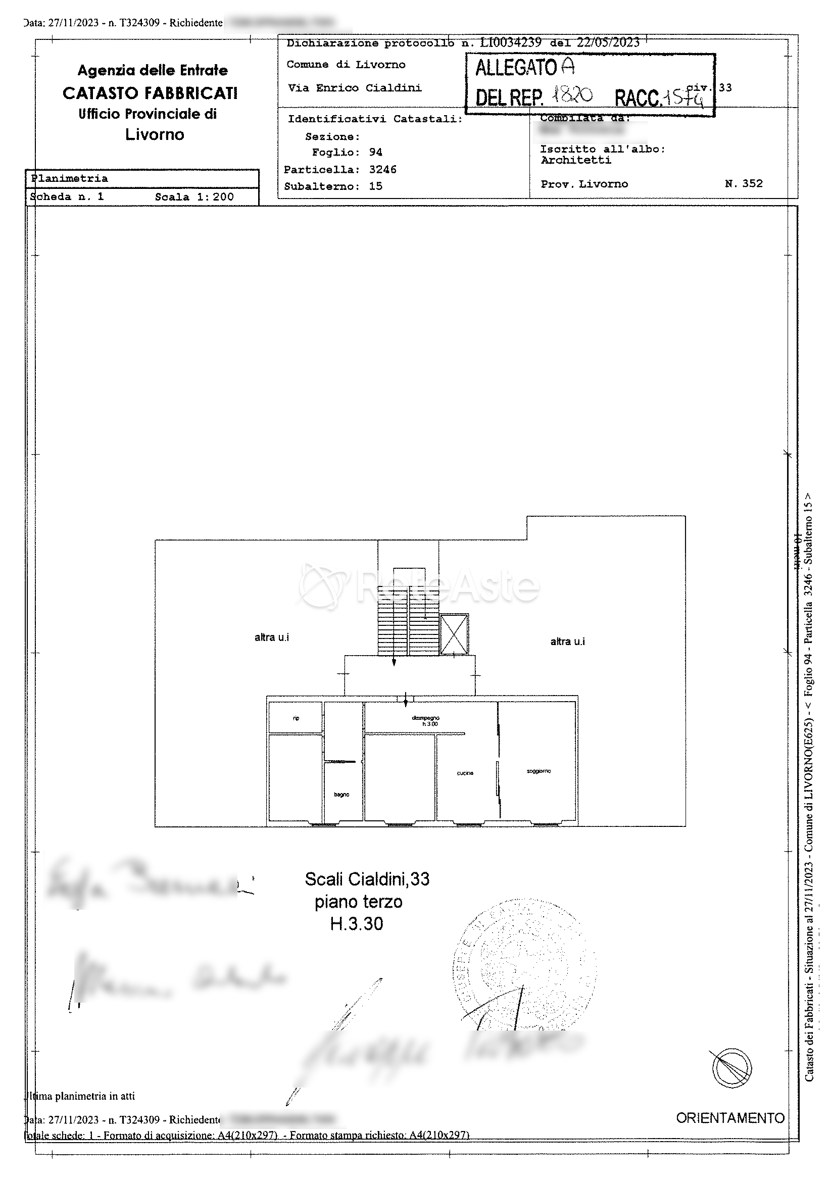
Situato al terzo piano con ascensore di un condominio signorile, l'appartamento di circa mq 95 è composto da ingresso, ampia zona living con salone e cucina abitabile, disimpegno notte, camera matrimoniale cameretta, bagno con finestra e comodo ripostiglio.
Situato al terzo piano con ascensore di un condominio signorile, l'appartamento di circa mq 95 è composto da ingresso, ampia zona living con salone e cucina abitabile, disimpegno notte, camera matrimoniale cameretta, bagno con finestra e comodo ripostiglio.
Il riscaldamento è classico autonomo con caldaia e radiatori ed è stato da poco installato anche un impianto di climatizzazione di ultima generazione (senza motori esterni).
Nel condominio è presente un'area per il ricovero di cicli e motocicli.
L'appartamento è stato interamente ristrutturato nel 2014 e viene venduto pari al nuovo. I pavimenti sono in gres porcellanato disegno parquet, gli infissi in pvc con vetrocamera, e gli impianti sono tutti dotati di certificati di regolarità esecutiva.
Situato a pochi metri dal centro dal porto e dall'ormai noto quartiere porta a mare, nelle vicinanze si trovano superpermercati, parcheggi, scuole banche uffici locali di ristoro e tutto ciò che di utile deriva la vicinanza al fulcro della città.
Nel condominio è presente un'area per il ricovero di cicli e motocicli.
L'appartamento è stato interamente ristrutturato nel 2014 e viene venduto pari al nuovo. I pavimenti sono in gres porcellanato disegno parquet, gli infissi in pvc con vetrocamera, e gli impianti sono tutti dotati di certificati di regolarità esecutiva.
Situato a pochi metri dal centro dal porto e dall'ormai noto quartiere porta a mare, nelle vicinanze si trovano superpermercati, parcheggi, scuole banche uffici locali di ristoro e tutto ciò che di utile deriva la vicinanza al fulcro della città.
| Superficie | 104 mq |
|---|---|
| Vani | 4 |
| Bagni | 1 |
| Piano | 3 |
| Tipologia di vendita | Privata |
|---|---|
| Modalità di vendita | Raccolta offerte |