Riferimento annuncio 299017
        
    
    Appartamento Via Del Leone, 57100 Livorno (LI)
                
                30,00
            
            
                
                51,00
            
            
                
                0
            
        
€ 45.360    
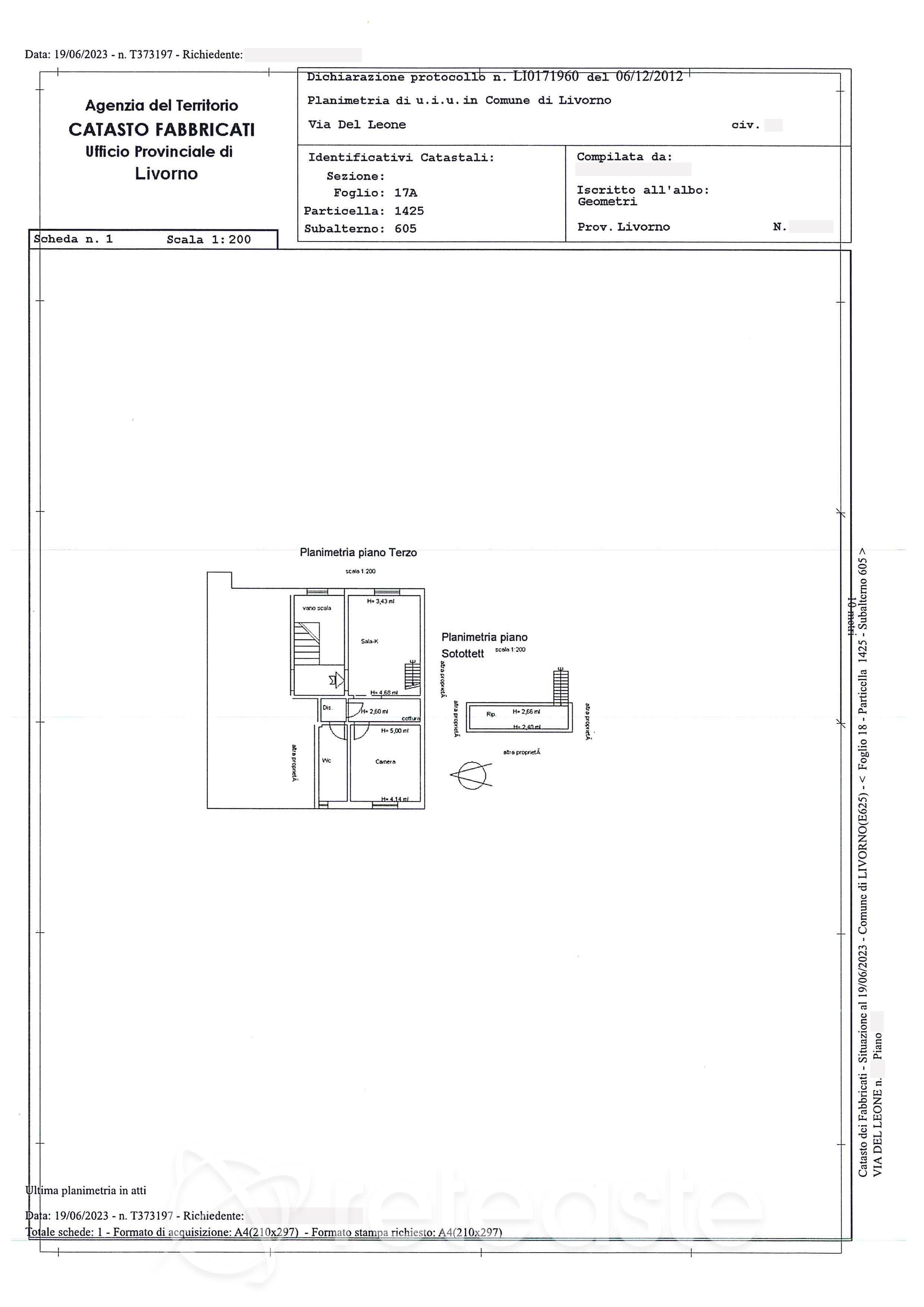
                Vendita in attesa dell'emissione del nuovo bando d'asta. LOTTO 358: Appartamento al piano terzo di un edificio di quattro piani fuori terra, privo di ascensore, composto da soggiorno, cucinotto, disimpegno, servizio igienico e camera; da soppalco ad uso ripostiglio, al quale si accede da scala in legno. L’edificio ha facciate intonacate e copertura a falde inclinate con manto in tegole di laterizio. Ultimo prezzo base € 45.360,00 (offerta minima € 45.360,00). Rif. Tribunale di Livorno - Ricorso per omologazione piano di ristrutturazione n. 1/2024
            
   
| Superficie | 51,00 mq | 
|---|---|
| Vani | 30,00 | 
| Bagni | |
| Piano | 0 | 
| Tipologia di vendita | Giudiziaria | 
|---|---|
| Modalità di vendita | Presso il venditore | 
| Termine presentazione domande | 01/01/1900 ore 00:00 | 
| Data e ora inizio gara | 06/05/2025 ore 14:00 | 
 
                         
                         
                         
                         
                         
                         
                         
                         
                         
                        