highlight_off
Riferimento annuncio 263685 info

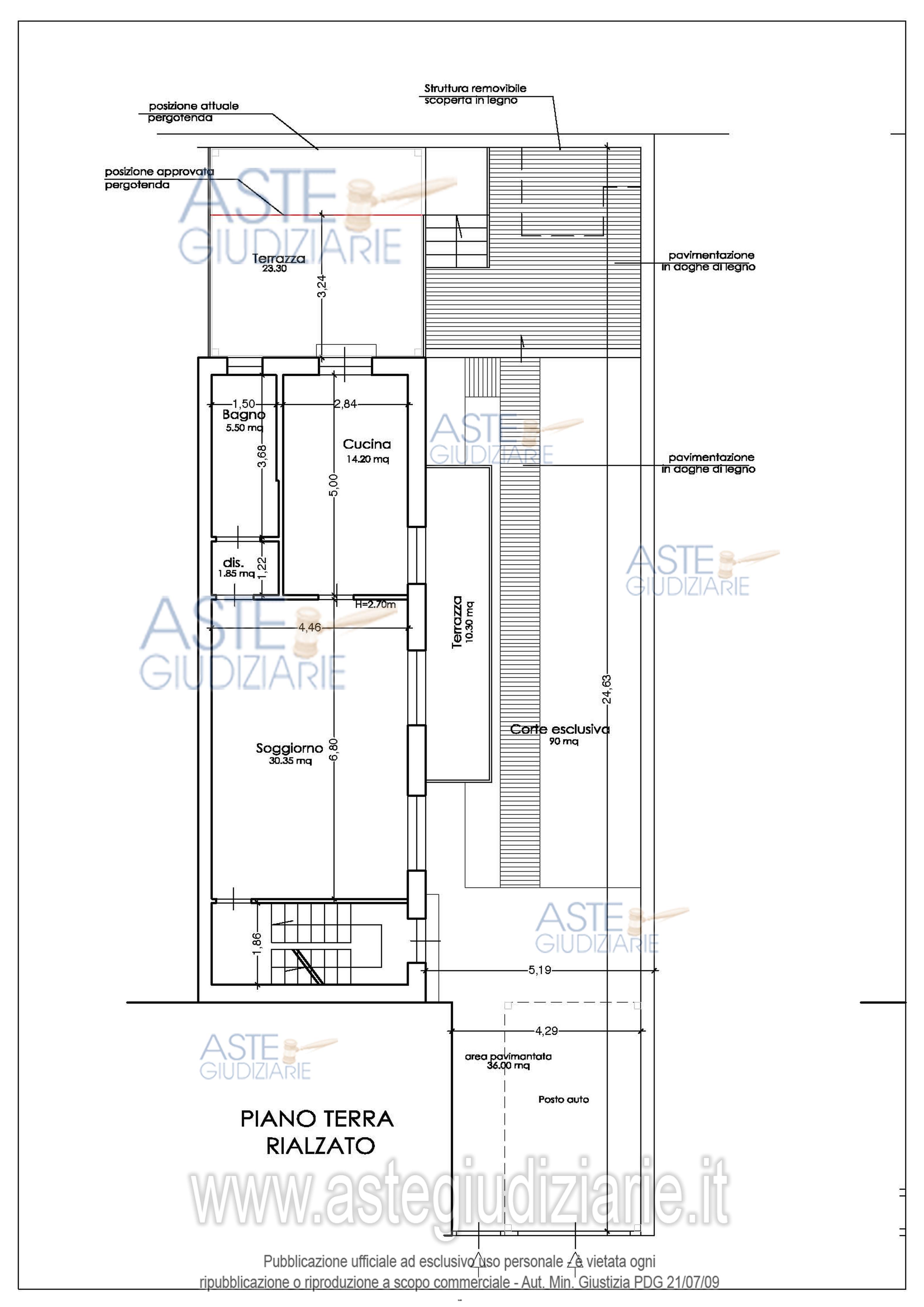
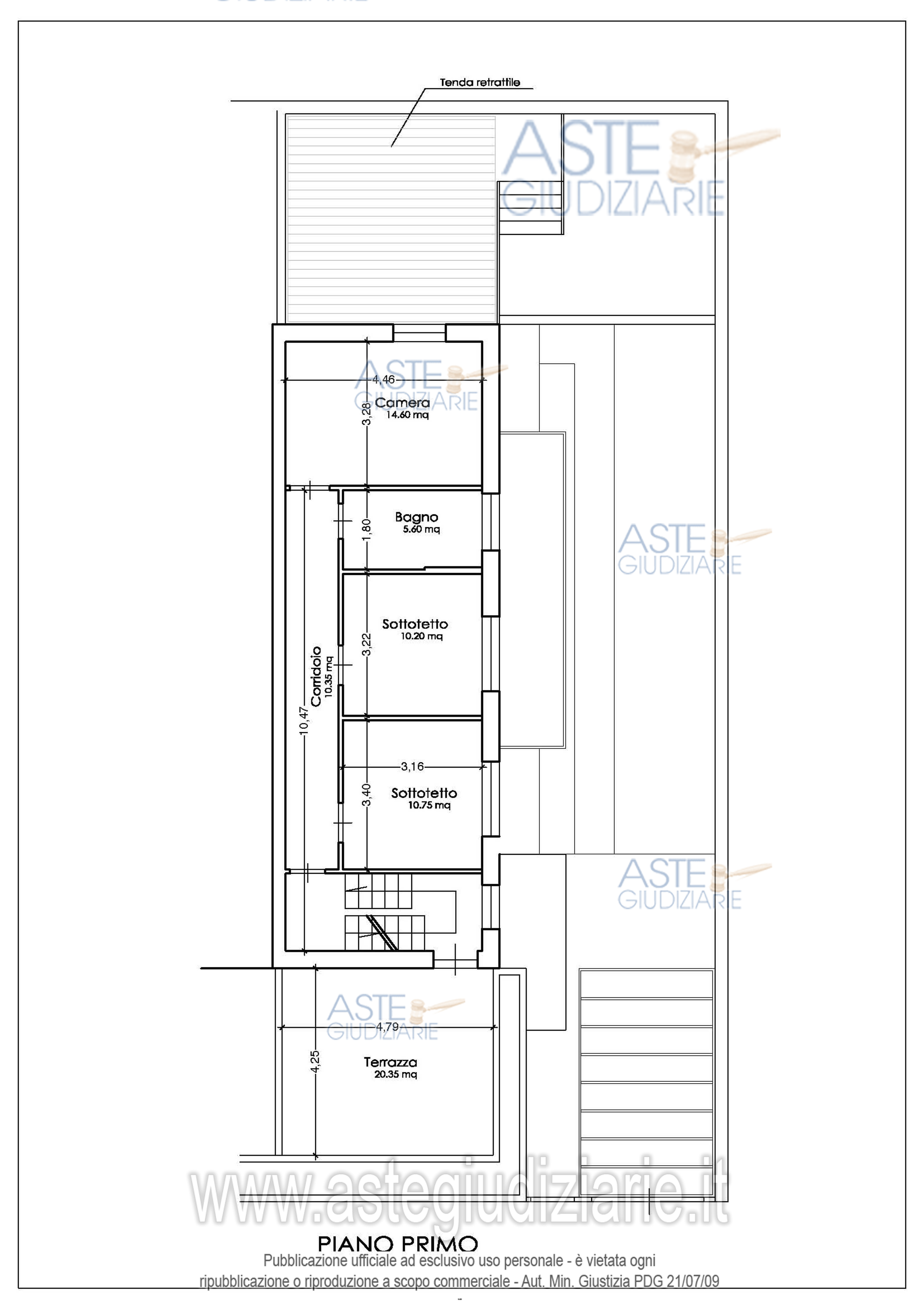
Appartamento Via della Salute n.49, 57100 Livorno (LI)

80,00
213,00
0
€ 425.495
Vendita all'asta Senza incanto, con gara telematica asincrona - LOTTO UNICO: Appartamento composto complessivamente da quattro livelli collegati da una scala interna. Prezzo base € 425.495,25 (offerta minima € 319.121,44). Data inizio operazioni di vendita: 07/07/2026 ore 12:00. Professionista delegato alla vendita: Avv. Giorgio Pritelli. Custode Giudiziario: Avv. Giorgio Pritelli - Email "g.pritelli@studiomaccario.it". Rif. Tribunale di Livorno - Esecuzione immobiliare post legge 80 n. 147/2022

Superficie 213,00 mq
Vani 80,00
Bagni
Piano 0

Tipologia di vendita Giudiziaria
Modalità di vendita Asincrona telematica
Termine presentazione offerte 06/07/2026 ore 12:00
Data e ora inizio gara 07/07/2026 ore 12:00
Codice ID astegiudiziarie.it 4297385
80,00
213,00
0
€ 425.495

Ti interessa questa vendita?

north_east

Clicca qui per essere indirizzato alla scheda sul sito di provenienza

Bene di astegiudiziarie.it