highlight_off
Riferimento annuncio 285285 info

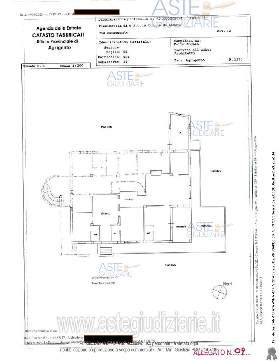
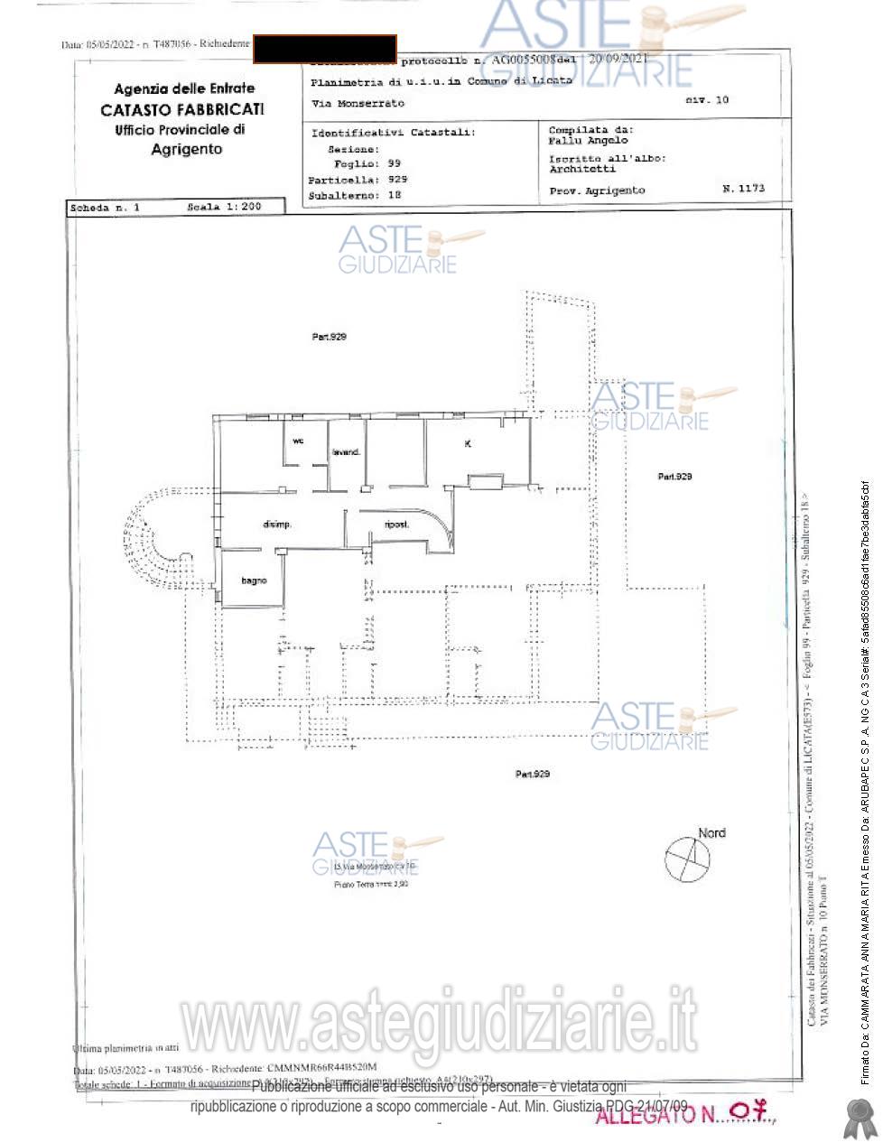
Appartamento via monserrato 10, 92027 Licata (AG)

347,00
0
€ 34.700
Vendita all'asta Senza incanto, con gara telematica sincrona mista - LOTTO 11: Diritto di usufrutto (relativo a soggetto di sesso maschile nato nel 1949) di appartamento doppio in Licata, Via Monserrato 10, esteso complessivamente mq. 347 ca., posto al piano terra di più ampio edificio, gode di area di pertinenza esterna. Prezzo base € 34.700,00 (offerta minima € 26.050,00). Data vendita 19/06/2026 ore 16:30. Professionista delegato alla vendita Avv. Luca Vetro - Email "info@avvocatovetro.eu"; Tel. 0922/23032. Custode Giudiziario Avv. Luca Vetro - Email "info@avvocatovetro.eu"; Tel. 0922/23032. Rif. Tribunale di Agrigento - Esecuzione immobiliare post legge 80 n. 126/2021

Superficie 347,00 mq
Vani
Bagni
Piano 0

Tipologia di vendita Giudiziaria
Modalità di vendita Sincrona mista
Termine presentazione offerte 01/01/1900 ore 00:00
Data e ora inizio gara 19/06/2026 ore 16:30
Codice ID astegiudiziarie.it 4312623
347,00
0
€ 34.700

Ti interessa questa vendita?

north_east

Clicca qui per essere indirizzato alla scheda sul sito di provenienza

Bene di astegiudiziarie.it