highlight_off
Riferimento annuncio 242049 info

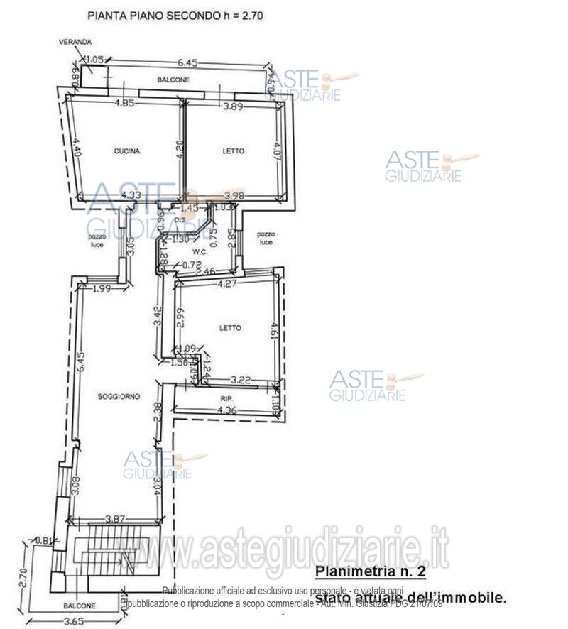
Appartamento Via Sant'Anna, 10, 90025 Lercara Friddi PA, Italia, 90025 Lercara Friddi (PA)

131,14
2
€ 15.340
Vendita all'asta Senza incanto, con gara telematica sincrona - LOTTO 3: Piena proprietà per la quota di 1/2 di unità immobiliare adibita a civile abitazione, sita nel comune di Lercara Friddi (PA) via Sant’Anna n. 10, in catasto al foglio di mappa urbana, particella 3176 sub 9, graffata con la particella 3177 sub 8 del n.c.e.u. (ex particella 3176 sub 8 graffata con la particella 3177 sub 7). Prezzo base € 15.339,97 (offerta minima € 11.504,98). Data vendita 23/06/2026 ore 10:00. Professionista delegato alla vendita: Avv. Roberto Battaglia - Email "avv.robertobattaglia@gmail.com"; Tel. 091/7309027. Custode Giudiziario: Avv. Roberto Battaglia - Email "avv.robertobattaglia@gmail.com"; Tel. 091/7309027. Rif. Tribunale di Termini Imerese - Esecuzione immobiliare post legge 80 n. 133/2021

Superficie 131,14 mq
Vani
Bagni
Piano 2

Tipologia di vendita Giudiziaria
Modalità di vendita Sincrona telematica
Termine presentazione offerte 22/06/2026 ore 17:00
Data e ora inizio gara 23/06/2026 ore 10:00
Codice ID astegiudiziarie.it 4278803
131,14
2
€ 15.340

Ti interessa questa vendita?

north_east

Clicca qui per essere indirizzato alla scheda sul sito di provenienza

Bene di astegiudiziarie.it