highlight_off
Riferimento annuncio 295760 info

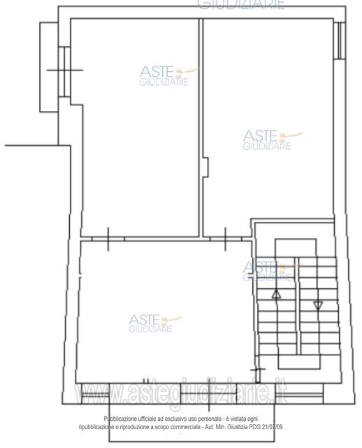
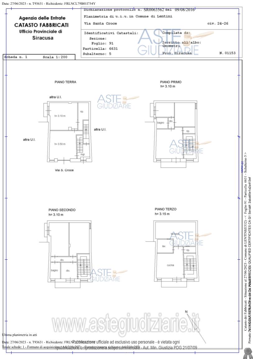
Appartamento Via Santa Croce, 24, 96016 Lentini SR, Italia, 96016 Lentini (SR)

236,00
0
€ 53.156
Vendita all'asta Senza incanto, con gara telematica sincrona mista - LOTTO UNICO: Indipendente in buone condizioni e con ampia terrazza. Prezzo base € 53.156,25 (offerta minima € 39.867,18). Data vendita 24/06/2026 ore 12:00. Professionista delegato alla vendita: Avv. Alessandra Cappello - Email "avv.alessandracappello@gmail.com"; Cell. 347/3063265. Custode Giudiziario: Avv. Alessandra Cappello - Email "avv.alessandracappello@gmail.com"; Cell. 347/3063265. Rif. Tribunale di Siracusa - Esecuzione immobiliare post legge 80 n. 33/2023

Superficie 236,00 mq
Vani
Bagni
Piano 0

Tipologia di vendita Giudiziaria
Modalità di vendita Sincrona mista
Termine presentazione offerte 23/06/2026 ore 12:00
Data e ora inizio gara 24/06/2026 ore 12:00
Codice ID astegiudiziarie.it 4320584
236,00
0
€ 53.156

Ti interessa questa vendita?

north_east

Clicca qui per essere indirizzato alla scheda sul sito di provenienza

Bene di astegiudiziarie.it