highlight_off
Riferimento annuncio 294778 info

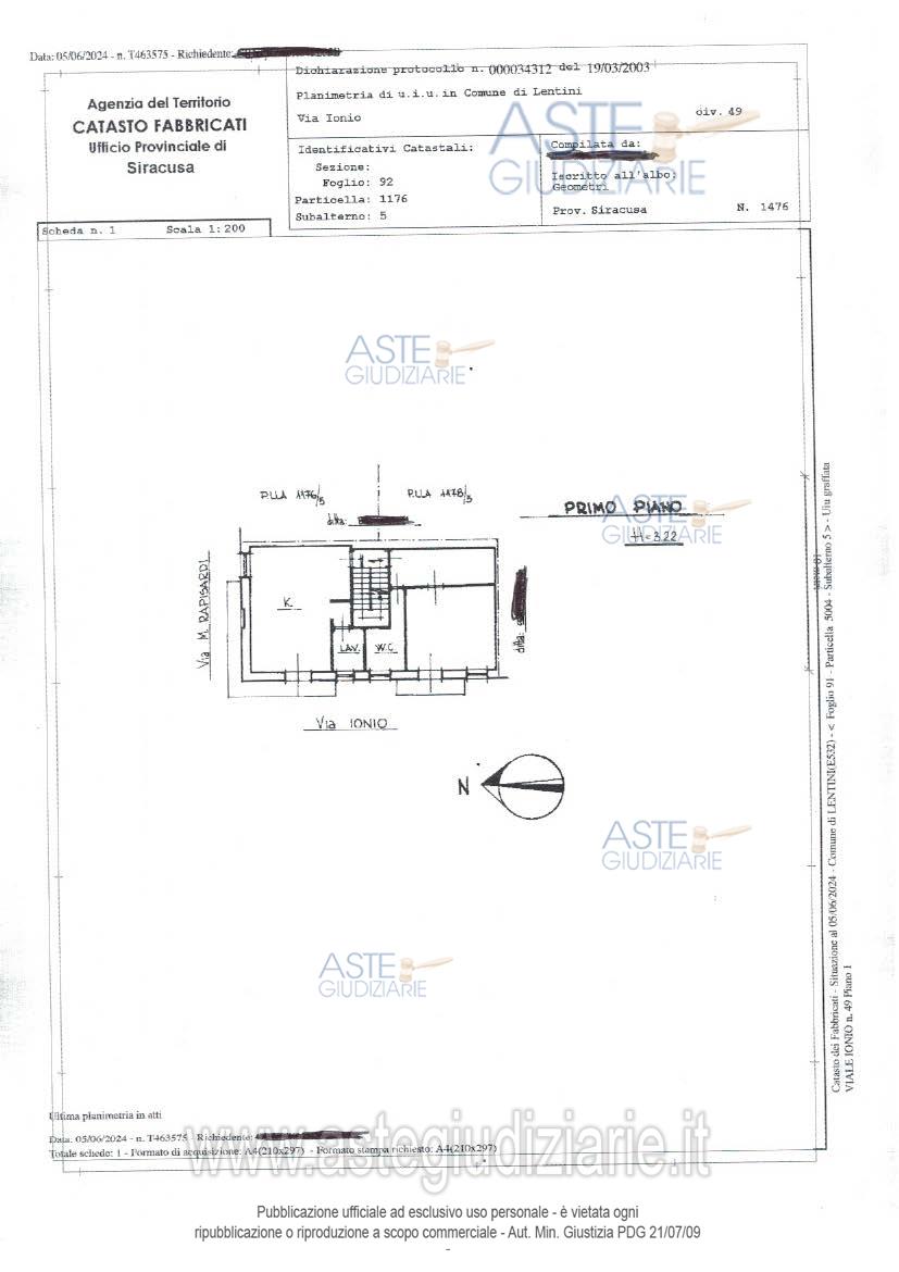
Appartamento via Ionio n. 49, angolo via Mario Rapisardi, 96016 Lentini (SR)

0
€ 22.500
Vendita all'asta Senza incanto, con gara telematica sincrona mista - LOTTO UNICO: 1/1 proprietà dell' appartamento in Lentini via Ionio n. 49 angolo via Mario Rapisardi, 1 p. composto da tre camere ed accessori, censito nel NCEU al fg. 91, p.lla 8865, sub. 5 graffato con p.lla 5004 sub. 5 (in precedenza le p.lle 8865/5 -5004/5 graffate del fg. 91 sono state indicate con le p.lle 1176/5 e 5004/5) cat. A/4, classe 2, r.c. € 99,16 e garage sito in Lentini in viale Ionio n. 51, censito al NCEU del detto Comune al fg. 91p.lla 5004 sub. 8, p.t., cat. C/6, mq. 30, cl 3, r.c. € 58,88”. Prezzo base € 22.500,00 (offerta minima € 16.875,00). Data vendita 22/10/2025 ore 09:00. Professionista delegato alla vendita Avv. Monica Benedetto - Email "avvmonicabenedetto@hotmail.com"; Cell. 3391109753; Tel. 09311560608. Custode Giudiziario Avv. Monica Benedetto - Email "avvmonicabenedetto@hotmail.com"; Cell. 3391109753; Tel. 09311560608. Rif. Tribunale di Siracusa - Espropriazione immobiliare (cartabia) n. 109/2024

Superficie mq
Vani
Bagni
Piano 0

Tipologia di vendita Giudiziaria
Modalità di vendita Sincrona mista
Termine presentazione offerte 21/10/2025 ore 12:00
Data e ora inizio gara 22/10/2025 ore 09:00
Codice ID astegiudiziarie.it 4319819
0
€ 22.500

Ti interessa questa vendita?

north_east

Clicca qui per essere indirizzato alla scheda sul sito di provenienza

Bene di astegiudiziarie.it