Riferimento annuncio 288113
        
    
    Appartamento Via Trani, 6, 96016 Lentini (SR)
                
                0
            
        
€ 21.938    
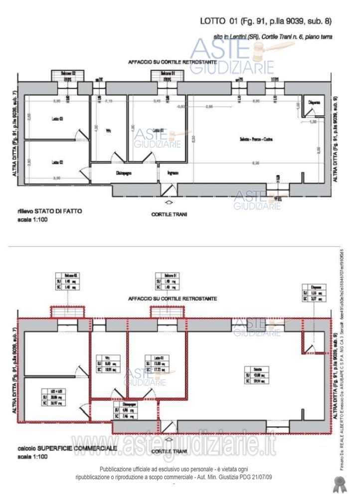
                Vendita in attesa dell'emissione del nuovo bando d'asta. LOTTO 1: Abitazione di vani 5 e superficie pari a circa 152 metri quadrati. Classe energetica F. Ultimo prezzo base € 21.938,00 (offerta minima € 16.654,00). Giudice Concita Cultrera. Professionista delegato alla vendita Avv. Antonio Sabella - Email "avv.antoniosabella@gmail.com"; Tel. 095507762. Custode Giudiziario  Avv. Antonio Sabella - Email "avv.antoniosabella@gmail.com"; Tel. 095507762.  Rif. Tribunale di Siracusa - Esecuzione immobiliare post legge 80 n. 300/2019
            
   
| Superficie | mq | 
|---|---|
| Vani | |
| Bagni | |
| Piano | 0 | 
| Tipologia di vendita | Giudiziaria | 
|---|---|
| Modalità di vendita | Sincrona mista | 
| Termine presentazione offerte | 01/01/1900 ore 00:00 | 
| Data e ora inizio gara | 23/10/2025 ore 11:00 | 
 
                         
                         
                         
                         
                         
                         
                         
                         
                         
                         
                         
                         
                         
                         
                        