Riferimento annuncio 317547
        
    
    Appartamento Via de Blasi Dante 23, 73100 Lecce LE, Italia, 73100 Lecce (LE)
                
                0
            
        
€ 177.000    
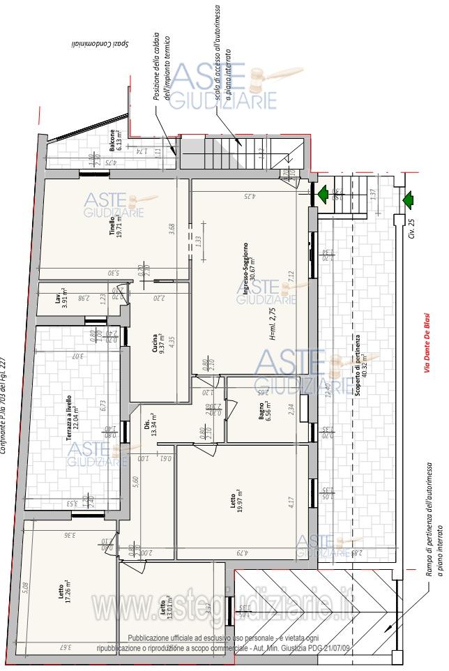
                Vendita all'asta Senza incanto, con gara telematica asincrona - LOTTO 002:  Piena proprietà di appartamento a LECCE Via dante De Blasi 23, della superficie commerciale di 192,84 mq per la quota di 1/1 di piena proprietà. L'appartamento è posto a piano primo ed ha accesso da vano scala aperto comune ad altra U.I. con ingresso dal civico n° 23. Prezzo base € 177.000,00 (offerta minima € 132.750,00). Data inizio operazioni di vendita: 12/12/2025 ore 15:00. Professionista delegato alla vendita Avv. Mario Lorubio - Email "mario.lorubio@gmail.com"; Cell. 3201187888. Custode Giudiziario  Avv. Mario Lorubio - Email "mario.lorubio@gmail.com"; Cell. 3201187888.  Rif. Tribunale di Lecce - Espropriazione immobiliare (cartabia) n. 280/2023
            
   
| Superficie | mq | 
|---|---|
| Vani | |
| Bagni | |
| Piano | 0 | 
| Tipologia di vendita | Giudiziaria | 
|---|---|
| Modalità di vendita | Asincrona telematica | 
| Termine presentazione offerte | 01/01/1900 ore 00:00 | 
| Data e ora inizio gara | 12/12/2025 ore 15:00 | 
 
                         
                         
                         
                         
                         
                         
                         
                         
                         
                        