highlight_off
Riferimento annuncio 311374 info

Appartamento Via Comunale vecchia Lecce-Copertino, 73100 Lecce (LE)

0
€ 336.000
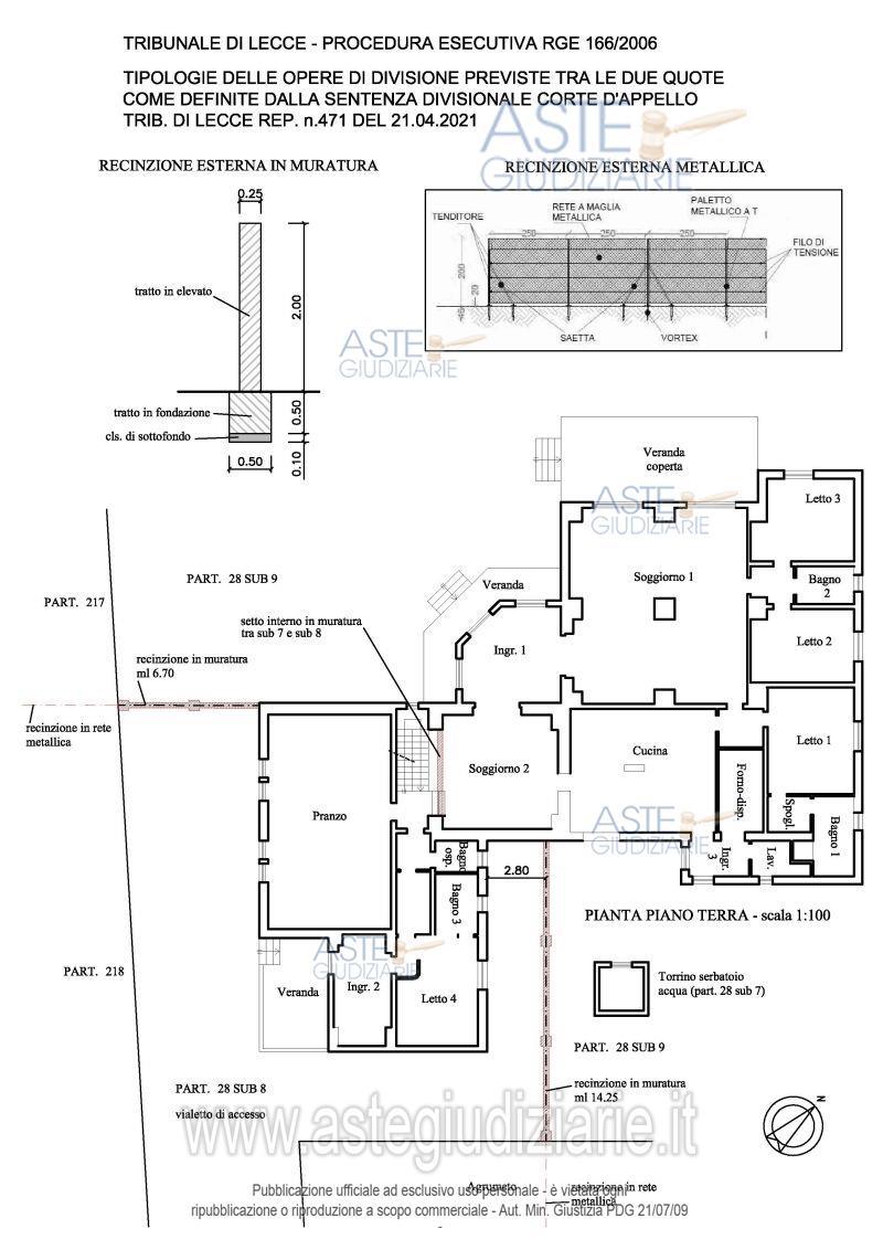
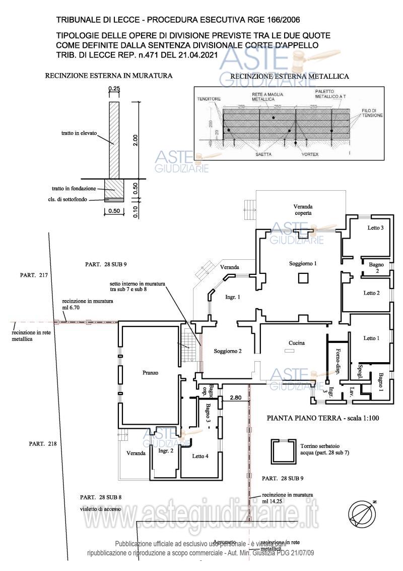
Vendita all'asta Senza incanto, con gara telematica asincrona - LOTTO UNICO: Immobili con diritto di piena proprietà per la quota di 1/1 siti in Lecce alla Via Comunale vecchia Lecce-Copertino, costituenti la quota “B” del progetto di divisione in atti:. Prezzo base € 336.000,00 (offerta minima € 252.000,00). Data inizio operazioni di vendita: 12/01/2026 ore 10:30. Professionista delegato alla vendita Dott. Francesco Leone - Email "studio.francesco.leone@gmail.com"; Cell. 3358180873; Tel. 0832364614. Custode Giudiziario Dott. Francesco Leone - Email "studio.francesco.leone@gmail.com"; Cell. 3358180873; Tel. 0832364614. Rif. Tribunale di Lecce - Esecuzione immobiliare post legge 80 n. 166/2006

Superficie mq
Vani
Bagni
Piano 0

Tipologia di vendita Giudiziaria
Modalità di vendita Asincrona telematica
Termine presentazione offerte 01/01/1900 ore 00:00
Data e ora inizio gara 12/01/2026 ore 10:30
Codice ID astegiudiziarie.it 4332668
0
€ 336.000

Ti interessa questa vendita?

north_east

Clicca qui per essere indirizzato alla scheda sul sito di provenienza

Bene di astegiudiziarie.it