highlight_off
Riferimento annuncio 247105 info

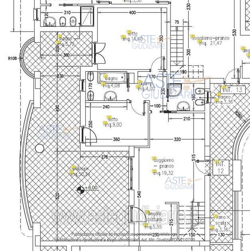
Appartamento VIA DEL LIDO N. 60, 04100 Latina (LT)

6,00
120,00
3
0
€ 182.973
Vendita all'asta Senza incanto, con gara telematica asincrona - LOTTO UNICO: Appartamento composto da zona notte con ingresso al piano secondo collegata, tramite scala interna a zona giorno al piano terzo, dotata di dedicato ingresso al piano; mezzanino, in cui è ubicata una piscina.-Piano quarto: veranda con tettoia, collegato tramite una scala con il mezzanino della piscina. - F. 283 P.lla 563 Sub. 28 cantina/garages al piano interrato collegato al piano terra tramite una rampa carrabile e da una scala interna e ascensore condominiali,. Prezzo base € 182.973,00 (offerta minima € 137.230,00). Data inizio operazioni di vendita: 02/12/2025 ore 10:00. Professionista delegato alla vendita Dott. Francesca Di Russo - Email "studiodirusso@libero.it"; Tel. 0773693350. Custode Giudiziario Dott. Francesca Di Russo - Email "studiodirusso@libero.it"; Tel. 0773693350. Rif. Tribunale di Latina - Esecuzione immobiliare post legge 80 n. 212/2020

Superficie 120,00 mq
Vani 6,00
Bagni 3
Piano 0

Tipologia di vendita Giudiziaria
Modalità di vendita Asincrona telematica
Termine presentazione offerte 01/12/2025 ore 13:00
Data e ora inizio gara 02/12/2025 ore 10:00
Codice ID astegiudiziarie.it 4282581
6,00
120,00
3
0
€ 182.973

Ti interessa questa vendita?

north_east

Clicca qui per essere indirizzato alla scheda sul sito di provenienza

Bene di astegiudiziarie.it