Riferimento annuncio 270713
        
    
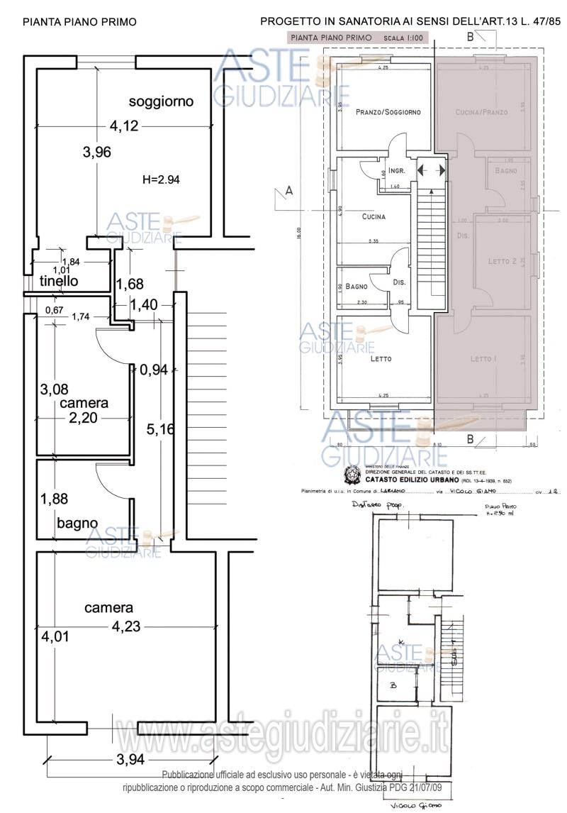
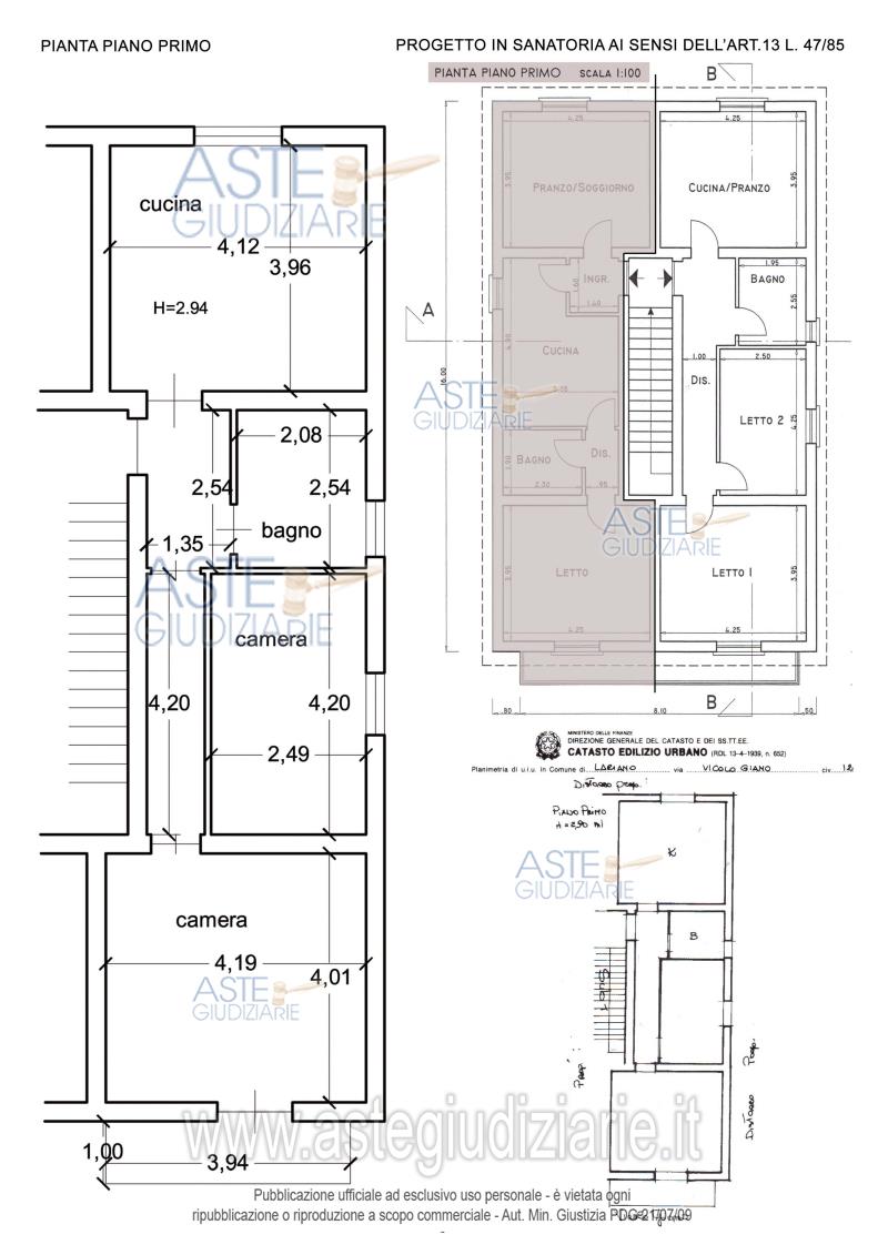
    Appartamento VICOLO GIANO N. 14, 00076 Lariano (RM)
                
                3,00
            
            
                
                60,00
            
            
                
                0
            
        
€ 30.000    
                Vendita all'asta Senza incanto - LOTTO 4:  APPARTAMENTO. Prezzo base € 30.000,00 (offerta minima € 22.500,00). Data vendita 28/11/2025 ore 10:30. Professionista delegato alla vendita Avv. Mauro Ferrante - Email "avv.ferrantemauro@libero.it"; Tel. 0693269188. Custode Giudiziario  Avv. Mauro Ferrante - Email "avv.ferrantemauro@libero.it"; Tel. 0693269188.  Rif. Tribunale di Velletri - Esecuzione immobiliare post legge 80 n. 451/2011
            
   
| Superficie | 60,00 mq | 
|---|---|
| Vani | 3,00 | 
| Bagni | |
| Piano | 0 | 
| Tipologia di vendita | Giudiziaria | 
|---|---|
| Modalità di vendita | Presso il venditore | 
| Termine presentazione offerte | 01/01/1900 ore 00:00 | 
| Data e ora inizio gara | 28/11/2025 ore 10:30 |