highlight_off
Riferimento annuncio 300306 info

Appartamento Via Santa Veronica, 67100 L'Aquila AQ, Italia, 67100 L'Aquila (AQ)

10,50
122,85
0
€ 63.000
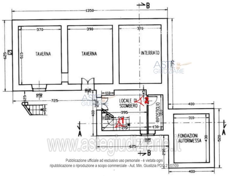
Vendita all'asta Senza incanto, con gara telematica asincrona - LOTTO 2: Lotto 2. Immobile con autorimessa ubicato a L'Aquila (AQ) - Via Santa Veronica, piano S1-T-1, che si sviluppa su tre piani, di cui uno seminterrato. Il presente Lotto è costituito da una porzione di immobile sita al Piano Seminterrato, una porzione sita al Piano Terra e tutto il Piano Primo. Identificato al catasto Fabbricati - Fg. 88, Part. 1439, Sub. 2, Zc. 2, Categoria A2 - Fg. 88, Part. 1439, Sub. 3, Zc. 2, Categoria C6. Prezzo base € 63.000,00 (offerta minima € 47.250,00). Data inizio operazioni di vendita: 28/01/2026 ore 11:30. Giudice Maura Manzi. Professionista delegato alla vendita Avv. Mariangela Vizioli. Custode Giudiziario Dott. Istituto Vendite Giudiziarie Abruzzo - Email "ivgavezzano@gmail.com". Rif. Tribunale di L'Aquila - Esecuzione immobiliare post legge 80 n. 60/2022

Superficie 122,85 mq
Vani 10,50
Bagni
Piano 0

Tipologia di vendita Giudiziaria
Modalità di vendita Asincrona telematica
Termine presentazione offerte 27/01/2026 ore 23:59
Data e ora inizio gara 28/01/2026 ore 11:30
Codice ID astegiudiziarie.it 4324009
10,50
122,85
0
€ 63.000

Ti interessa questa vendita?

north_east

Clicca qui per essere indirizzato alla scheda sul sito di provenienza

Bene di astegiudiziarie.it