highlight_off
Riferimento annuncio 300305 info

Appartamento Via Santa Veronica, 67100 L'Aquila AQ, Italia, 67100 L'Aquila (AQ)

10,50
107,07
0
€ 67.275
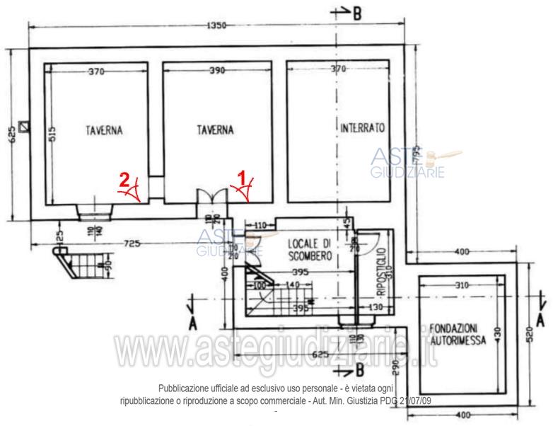
Vendita all'asta Senza incanto, con gara telematica asincrona - LOTTO 1: Lotto 1. Immobile sito nel Comune di L'Aquila, Via Santa Veronica, piano S1-T, costituito da un fabbricato che si sviluppa su tre piani, di cui uno seminterrato. Il presente Lotto è costituito da una porzione di immobile sita a piano Seminterrato ed una porzione sita a Piano Terra. Identificato al catasto Fabbricati - Fg. 88, Part. 1439, Sub. 2, Zc. 2, Categoria A2. L'immobile viene posto in vendita per il diritto di Proprietà (1/1). La costruzione è antecedente al 01/09/1967. Prezzo base € 67.275,00 (offerta minima € 50.456,25). Data inizio operazioni di vendita: 28/01/2026 ore 11:30. Giudice Maura Manzi. Professionista delegato alla vendita Avv. Mariangela Vizioli. Custode Giudiziario Dott. Istituto Vendite Giudiziarie Abruzzo - Email "ivgavezzano@gmail.com". Rif. Tribunale di L'Aquila - Esecuzione immobiliare post legge 80 n. 60/2022

Superficie 107,07 mq
Vani 10,50
Bagni
Piano 0

Tipologia di vendita Giudiziaria
Modalità di vendita Asincrona telematica
Termine presentazione offerte 27/01/2026 ore 23:59
Data e ora inizio gara 28/01/2026 ore 11:30
Codice ID astegiudiziarie.it 4324008
10,50
107,07
0
€ 67.275

Ti interessa questa vendita?

north_east

Clicca qui per essere indirizzato alla scheda sul sito di provenienza

Bene di astegiudiziarie.it