Riferimento annuncio 291774
        
    
    Appartamento 66034 Contrada Re di Coppe CH, Italia, 66034 Lanciano (CH)
                
                6,00
            
            
                
                111,00
            
            
                
                3
            
            
                
                0
            
        
€ 96.000    
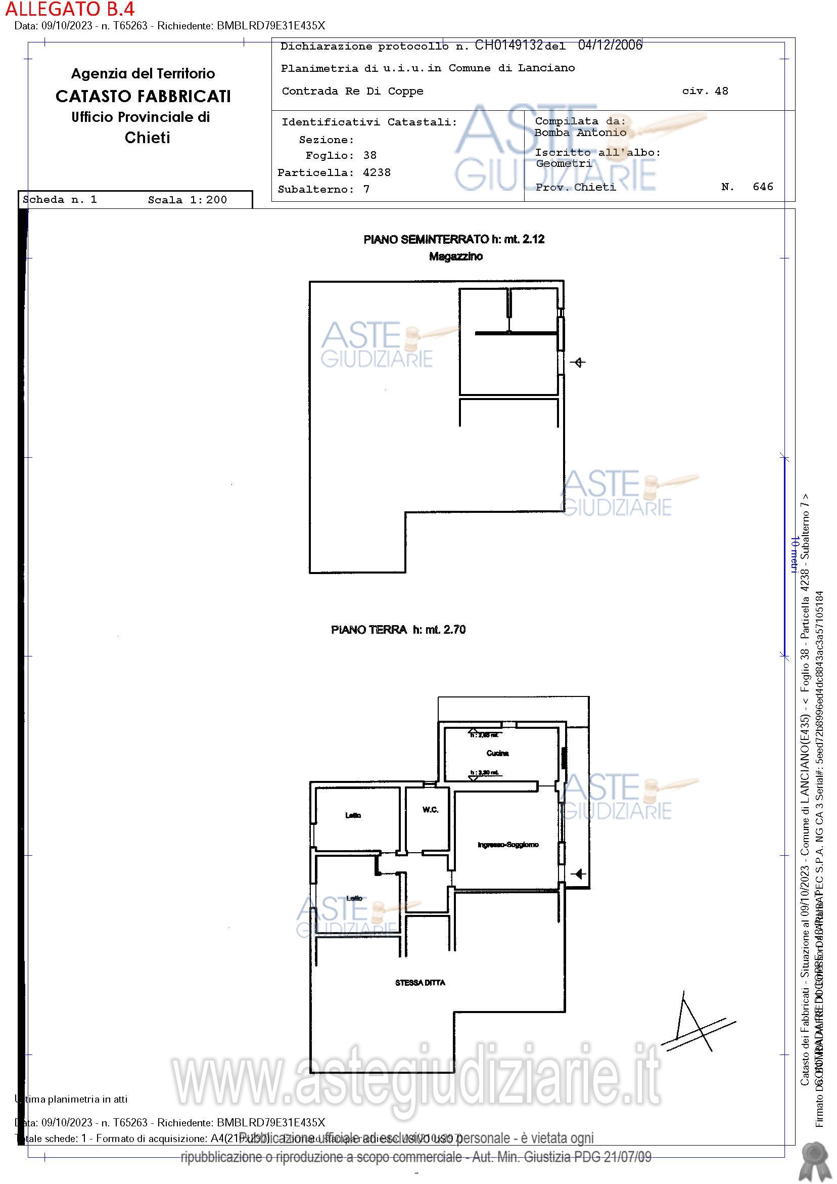
                Vendita all'asta Senza incanto, con gara telematica asincrona - LOTTO UNICO:  Diritto di piena proprietà appartamento sito al piano terra di un fabbricato con più abitazioni, con annessa corte esclusiva ed un magazzino (piccolo ripostiglio) al piano seminterrato a servizio dell’abitazione, appartamento composto da ingresso direttamente sul soggiorno, cucina e zona notte con due camere da letto, spazio esterno un bagno ed un piccolo wc, collegati al soggiorno da un disimpegno. Prezzo base € 96.000,00 (offerta minima € 72.000,00). Data inizio operazioni di vendita: 11/11/2025 ore 12:00. Giudice Dott. Chiara D'alfonso. Professionista delegato alla vendita Avv. Giuseppe Natarella - Email "natarellagiuseppe@gmail.com"; Cell. 3386957842. Custode Giudiziario   Ivg - Email "ivglanciano@gmail.com"; Cell. 0872715361.  Rif. Tribunale di Lanciano - Espropriazione immobiliare (cartabia) n. 42/2023
            
   
| Superficie | 111,00 mq | 
|---|---|
| Vani | 6,00 | 
| Bagni | 3 | 
| Piano | 0 | 
| Tipologia di vendita | Giudiziaria | 
|---|---|
| Modalità di vendita | Asincrona telematica | 
| Termine presentazione offerte | 10/11/2025 ore 12:00 | 
| Data e ora inizio gara | 11/11/2025 ore 12:00 |