highlight_off
Riferimento annuncio 326831 info

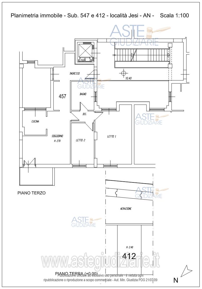
Appartamento Via Luigi Mercantini, 8, 60035 Jesi AN, Italia, 60035 Jesi (AN)

0
€ 122.500
Vendita all'asta Senza incanto, con gara telematica asincrona - LOTTO 7: Appartamento con posto auto. Prezzo base € 122.500,00 (offerta minima € 97.875,00). Data inizio operazioni di vendita: 16/04/2026 ore 10:45. Giudice Dott. Maria Letizia Mantovani. Professionista delegato alla vendita Avv. Giorgio Pierucci. Custode Giudiziario Avv. Giorgio Pierucci - Email "avvgpierucci@hotmail.com"; Tel. 0731214632. Rif. Tribunale di Ancona - Espropriazione immobiliare (cartabia) n. 60/2024

Superficie mq
Vani
Bagni
Piano 0

Tipologia di vendita Giudiziaria
Modalità di vendita Asincrona telematica
Termine presentazione offerte 15/04/2026 ore 12:00
Data e ora inizio gara 16/04/2026 ore 10:45
Codice ID astegiudiziarie.it 4345593
0
€ 122.500

Ti interessa questa vendita?

north_east

Clicca qui per essere indirizzato alla scheda sul sito di provenienza

Bene di astegiudiziarie.it