highlight_off
Riferimento annuncio 310363 info

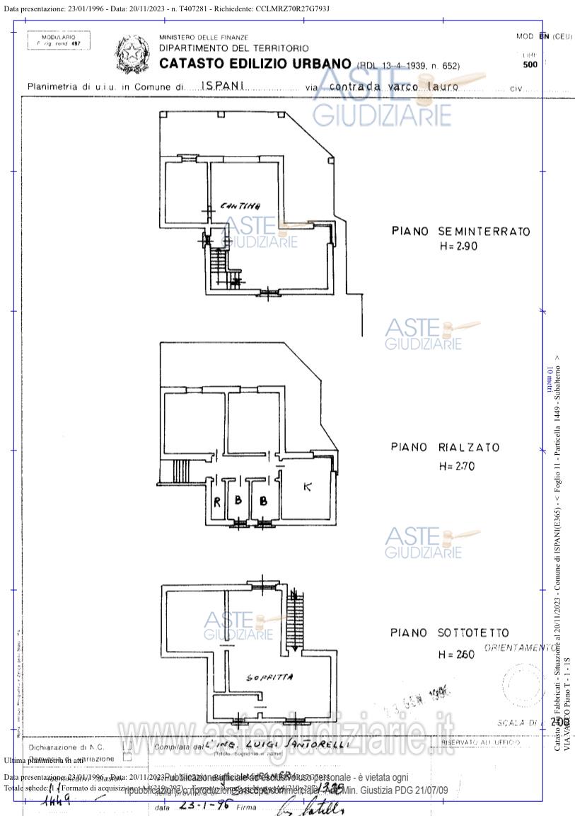
Appartamento Via Varco di Ispani, 84050 Ispani (SA)

6,00
300,00
4
0
€ 247.500
Vendita all'asta Senza incanto, con gara telematica asincrona - LOTTO 3: Fabbricato, per civile abitazione, con terreno circostante (vigneto) sviluppato su tre piani fuori terra (piano seminterrato, piano primo e piano sottotetto). Prezzo base € 247.500,00 (offerta minima € 185.625,00). Data inizio operazioni di vendita: 05/05/2026 ore 16:00. Giudice Dott. Giuliana Santa Trotta. Professionista delegato alla vendita Avv. Rosaria Galatro - Email "rosaria.galatro@virgilio.it"; Cell. 3319057060; Tel. 3319057060. Custode Giudiziario Avv. Rosaria Galatro - Email "rosaria.galatro@virgilio.it"; Cell. 3319057060; Tel. 3319057060. Rif. Tribunale di Lagonegro - Esecuzione immobiliare post legge 80 n. 65/2021

Superficie 300,00 mq
Vani 6,00
Bagni 4
Piano 0

Tipologia di vendita Giudiziaria
Modalità di vendita Asincrona telematica
Termine presentazione offerte 04/05/2026 ore 13:00
Data e ora inizio gara 05/05/2026 ore 16:00
Codice ID astegiudiziarie.it 4332067
6,00
300,00
4
0
€ 247.500

Ti interessa questa vendita?

north_east

Clicca qui per essere indirizzato alla scheda sul sito di provenienza

Bene di astegiudiziarie.it