highlight_off
Riferimento annuncio 265497 info

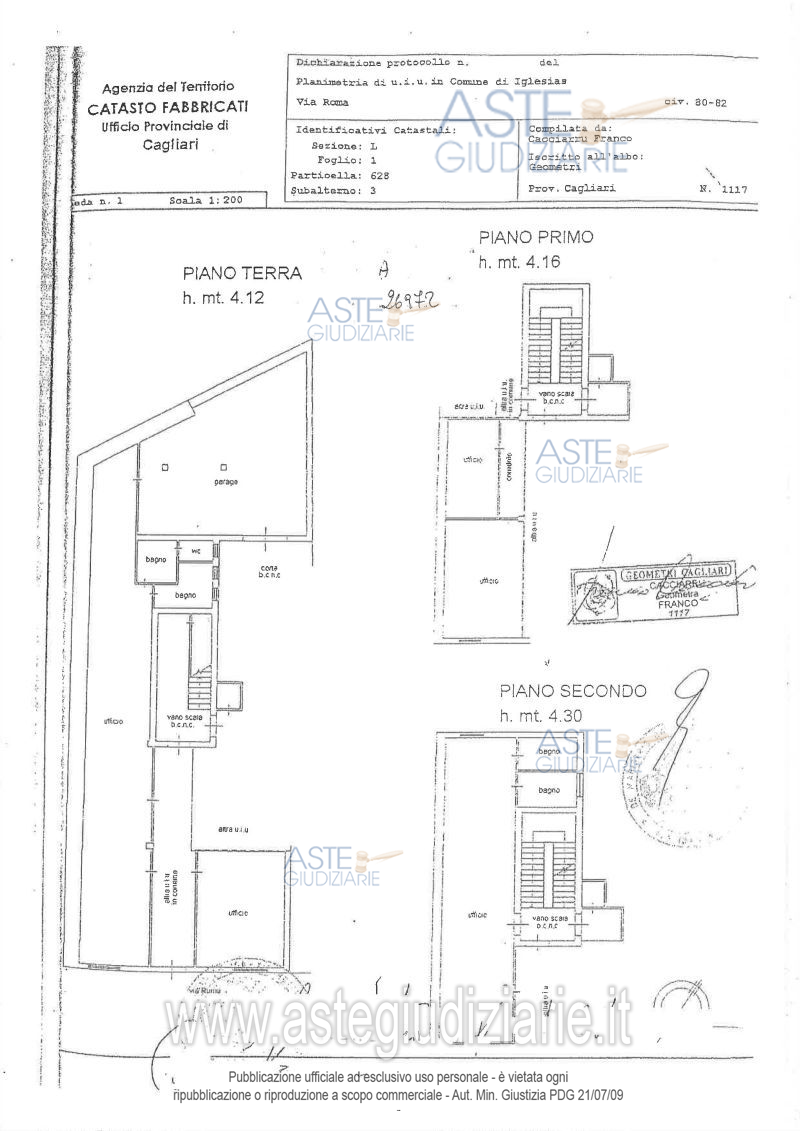
Appartamento Via Sulcis 2, 09016 Iglesias (SU)

4,50
92,00
0
€ 29.376
Vendita all'asta Senza incanto, con gara telematica asincrona - LOTTO 5: Quota pari all’intero del diritto di proprietà sull’appartamento al piano primo del maggior fabbricato con accesso dalla Via Sulcis 2, composto da ingresso-soggiorno, bagno, cucina, due camere. Prezzo base € 29.376,00 (offerta minima € 22.032,00). Data inizio operazioni di vendita: 16/12/2025 ore 11:00. Giudice Silvia Cocco. Professionista delegato alla vendita Not. Stefano Casti - Email "ufficiouniconotai@pec.it"; Tel. 07060222574. Custode Giudiziario Ivg Cagliari - Email "ivg.visiteimmobili@tiscali.it"; Tel. 0702299036. Rif. Tribunale di Cagliari - Esecuzione immobiliare post legge 80 n. 224/2017

Superficie 92,00 mq
Vani 4,50
Bagni
Piano 0

Tipologia di vendita Giudiziaria
Modalità di vendita Asincrona telematica
Termine presentazione offerte 15/12/2025 ore 13:00
Data e ora inizio gara 16/12/2025 ore 11:00
Codice ID astegiudiziarie.it 4299089
4,50
92,00
0
€ 29.376

Ti interessa questa vendita?

north_east

Clicca qui per essere indirizzato alla scheda sul sito di provenienza

Bene di astegiudiziarie.it