Riferimento annuncio 265496
        
    
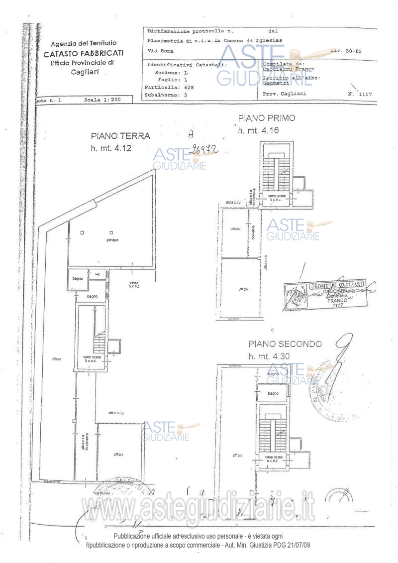
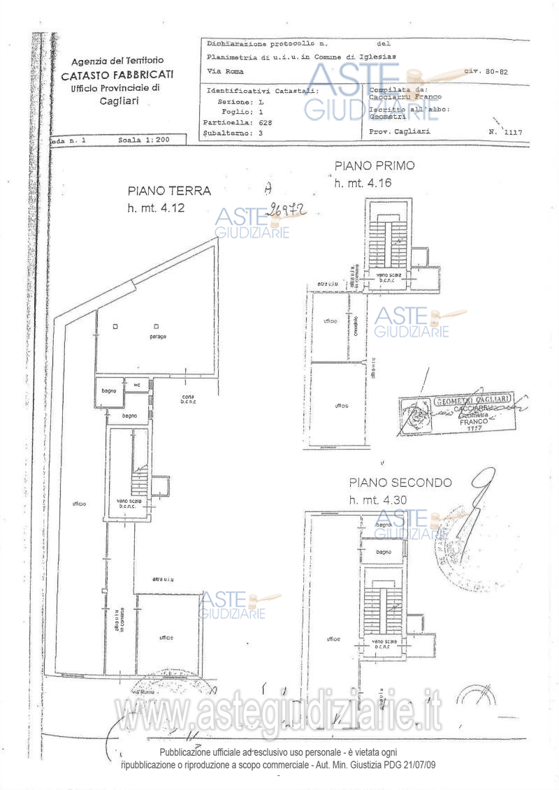
    Appartamento Via Sulcis 2, 09016 Iglesias (SU)
                
                5,00
            
            
                
                92,00
            
            
                
                0
            
        
€ 30.600    
                Vendita all'asta Senza incanto, con gara telematica asincrona - LOTTO 4:  Quota pari all’intero del diritto di proprietà sull’appartamento al piano secondo del maggior fabbricato con accesso dalla Via Sulcis 2, composto da ingresso, bagno, cucina, due camere, soggiorno. Prezzo base € 30.600,00 (offerta minima € 22.950,00). Data inizio operazioni di vendita: 16/12/2025 ore 11:00. Giudice Silvia Cocco. Professionista delegato alla vendita Not. Stefano Casti - Email "ufficiouniconotai@pec.it"; Tel. 07060222574. Custode Giudiziario  Ivg Cagliari - Email "ivg.visiteimmobili@tiscali.it"; Tel. 0702299036.  Rif. Tribunale di Cagliari - Esecuzione immobiliare post legge 80 n. 224/2017
            
   
| Superficie | 92,00 mq | 
|---|---|
| Vani | 5,00 | 
| Bagni | |
| Piano | 0 | 
| Tipologia di vendita | Giudiziaria | 
|---|---|
| Modalità di vendita | Asincrona telematica | 
| Termine presentazione offerte | 15/12/2025 ore 13:00 | 
| Data e ora inizio gara | 16/12/2025 ore 11:00 | 
 
                         
                         
                         
                         
                         
                         
                         
                         
                         
                         
                         
                         
                         
                         
                         
                         
                         
                         
                         
                         
                         
                         
                         
                         
                        