highlight_off
Riferimento annuncio 225034 info

Appartamento Via Fontana, 42, 09016 Iglesias SU, Italia, 09016 Iglesias (SU)

6,00
120,00
0
€ 40.850
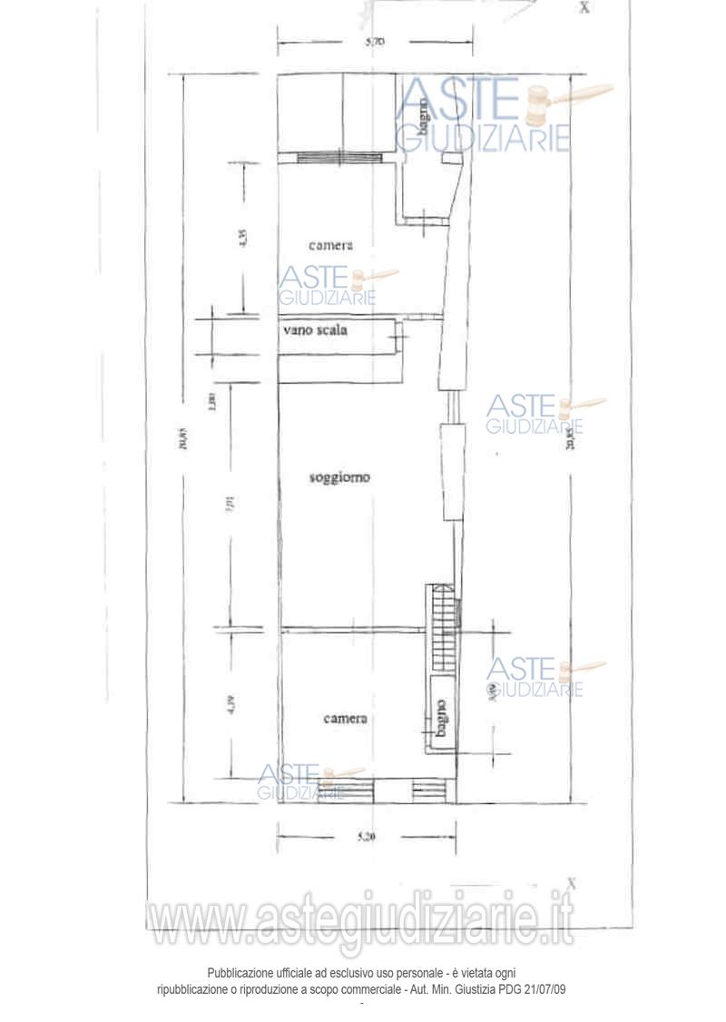
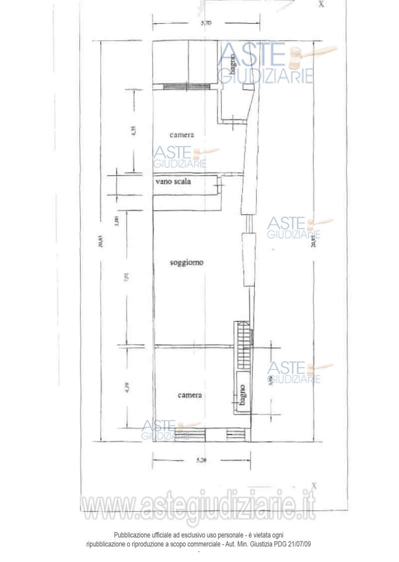
Vendita all'asta Senza incanto, con gara telematica asincrona - LOTTO UNICO: Piena proprietà dell’appartamento per civile abitazione al piano primo del maggior fabbricato con accesso dalla Via Fontana 42 composto da: soggiorno, cucina, due camere, sgabuzzino, bagno, sottotetto. Prezzo base € 40.850,00 (offerta minima € 30.637,50). Data inizio operazioni di vendita: 12/05/2026 ore 09:00. Giudice Valentina Frongia. Professionista delegato alla vendita Giuditta Grilletti - Email "ufficiouniconotai@pec.it"; Tel. 07060222574. Rif. Tribunale di Cagliari - Esecuzione immobiliare post legge 80 n. 7/2014

Superficie 120,00 mq
Vani 6,00
Bagni
Piano 0

Tipologia di vendita Giudiziaria
Modalità di vendita Asincrona telematica
Termine presentazione offerte 11/05/2026 ore 13:00
Data e ora inizio gara 12/05/2026 ore 09:00
Codice ID astegiudiziarie.it 399157
6,00
120,00
0
€ 40.850

Ti interessa questa vendita?

north_east

Clicca qui per essere indirizzato alla scheda sul sito di provenienza

Bene di astegiudiziarie.it