highlight_off
Riferimento annuncio 152096 info

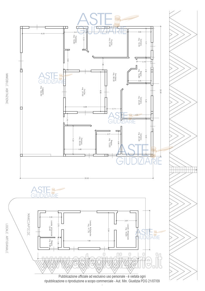
Appartamento via Goldoni snc, 09016 Iglesias (SU)

8,00
260,00
0
€ 317.360
Vendita all'asta Senza incanto, con gara telematica asincrona - LOTTO UNICO: Quota pari all’intero del diritto di proprietà sul complesso immobiliare con accesso dalla via Goldoni snc, composto da abitazione con giardino, magazzino e terreno edificabile. Prezzo base € 317.360,00 (offerta minima € 238.020,00). Data inizio operazioni di vendita: 04/02/2026 ore 09:00. Giudice Flaminia Ielo. Professionista delegato alla vendita Not. Roberto Onano - Email "ufficiouniconotai@pec.it"; Tel. 07060222574. Custode Giudiziario Ivg Cagliari - Email "ivg.visiteimmobili@tiscali.it"; Tel. 0702299036. Rif. Tribunale di Cagliari - Esecuzione immobiliare post legge 80 n. 349/2017

Superficie 260,00 mq
Vani 8,00
Bagni
Piano 0

Tipologia di vendita Giudiziaria
Modalità di vendita Asincrona telematica
Termine presentazione offerte 01/01/1900 ore 00:00
Data e ora inizio gara 04/02/2026 ore 09:00
Codice ID astegiudiziarie.it 4256808
8,00
260,00
0
€ 317.360

Ti interessa questa vendita?

north_east

Clicca qui per essere indirizzato alla scheda sul sito di provenienza

Bene di astegiudiziarie.it