highlight_off
Riferimento annuncio 143865 info

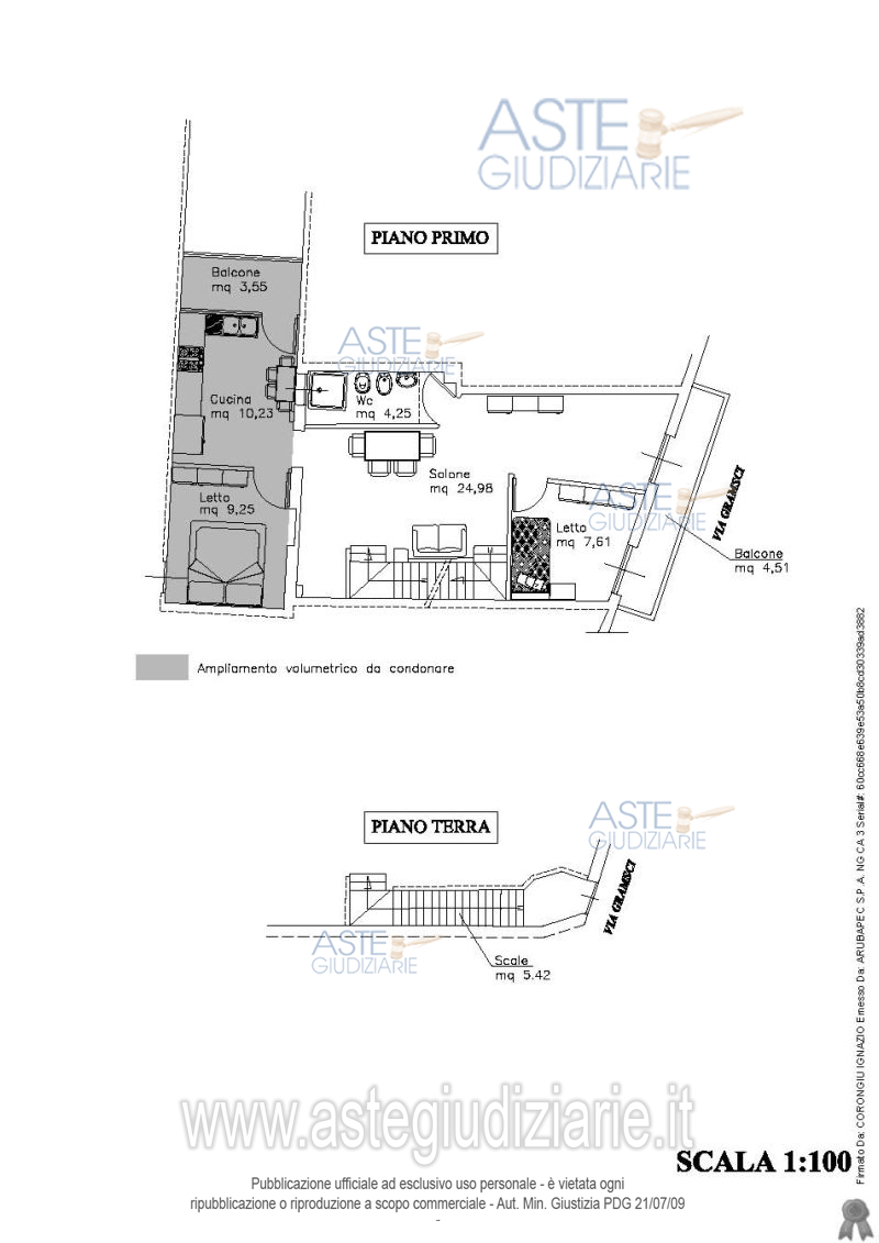
Appartamento Via Gramsci 26, 09036 Guspini (SU)

5,50
110,00
0
€ 31.600
Vendita all'asta Senza incanto - LOTTO 2: Piena proprietà dell’appartamento per civile abitazione su due livelli, con accesso dalla Via Gramsci 26, composto al piano primo da salone, bagno, cucina, due camere e al piano sottotetto da una camera, locale di sgombero e bagno. Prezzo base € 31.600,00 (offerta minima € 23.700,00). Data vendita 26/11/2025 ore 09:00. Giudice Flaminia Ielo. Professionista delegato alla vendita Not. Carlo Mario De Magistris - Email "ufficiouniconotai@pec.it"; Tel. 07060222574. Rif. Tribunale di Cagliari - Esecuzione immobiliari n. 59/1998

Superficie 110,00 mq
Vani 5,50
Bagni
Piano 0

Tipologia di vendita Giudiziaria
Modalità di vendita Presso il venditore
Termine presentazione offerte 01/01/1900 ore 00:00
Data e ora inizio gara 26/11/2025 ore 09:00
Codice ID astegiudiziarie.it 399235
5,50
110,00
0
€ 31.600

Ti interessa questa vendita?

north_east

Clicca qui per essere indirizzato alla scheda sul sito di provenienza

Bene di astegiudiziarie.it