highlight_off
Riferimento annuncio 143865 info

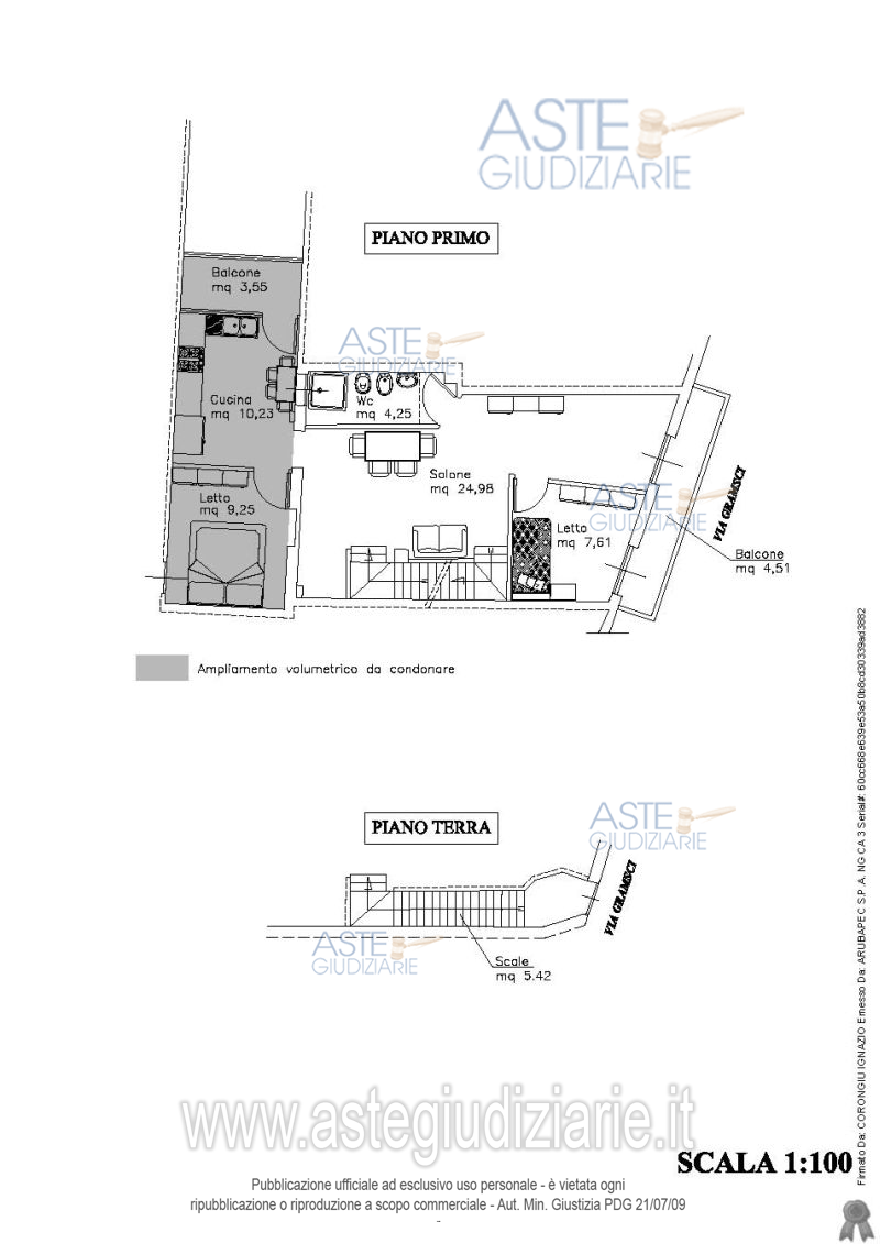
Appartamento Via Gramsci 26, 09036 Guspini (VS)

5,50
110,00
0
€ 30.000
Vendita all'asta Senza incanto, con gara telematica asincrona - LOTTO 2: Piena proprietà dell’appartamento per civile abitazione su due livelli, con accesso dalla Via Gramsci 26, composto al piano primo da salone, bagno, cucina, due camere e al piano sottotetto da una camera, locale di sgombero e bagno. Prezzo base € 30.000,00 (offerta minima € 22.500,00). Data inizio operazioni di vendita: 16/06/2026 ore 09:00. Giudice Dott. Valentina Frongia. Professionista delegato alla vendita Not. Massimiliano Vadilonga - Email "ufficiouniconotai@pec.it"; Tel. 070/60222574. Rif. Tribunale di Cagliari - Esecuzione immobiliari n. 59/1998

Superficie 110,00 mq
Vani 5,50
Bagni
Piano 0

Tipologia di vendita Giudiziaria
Modalità di vendita Asincrona telematica
Termine presentazione offerte 15/06/2026 ore 13:00
Data e ora inizio gara 16/06/2026 ore 09:00
Codice ID astegiudiziarie.it 399235
5,50
110,00
0
€ 30.000

Ti interessa questa vendita?

north_east

Clicca qui per essere indirizzato alla scheda sul sito di provenienza

Bene di astegiudiziarie.it