highlight_off
Riferimento annuncio 316752 info

Appartamento Via Giuseppe Di Vittorio 2, 81030 Gricignano di Aversa (CE)

6,00
115,00
0
€ 118.000
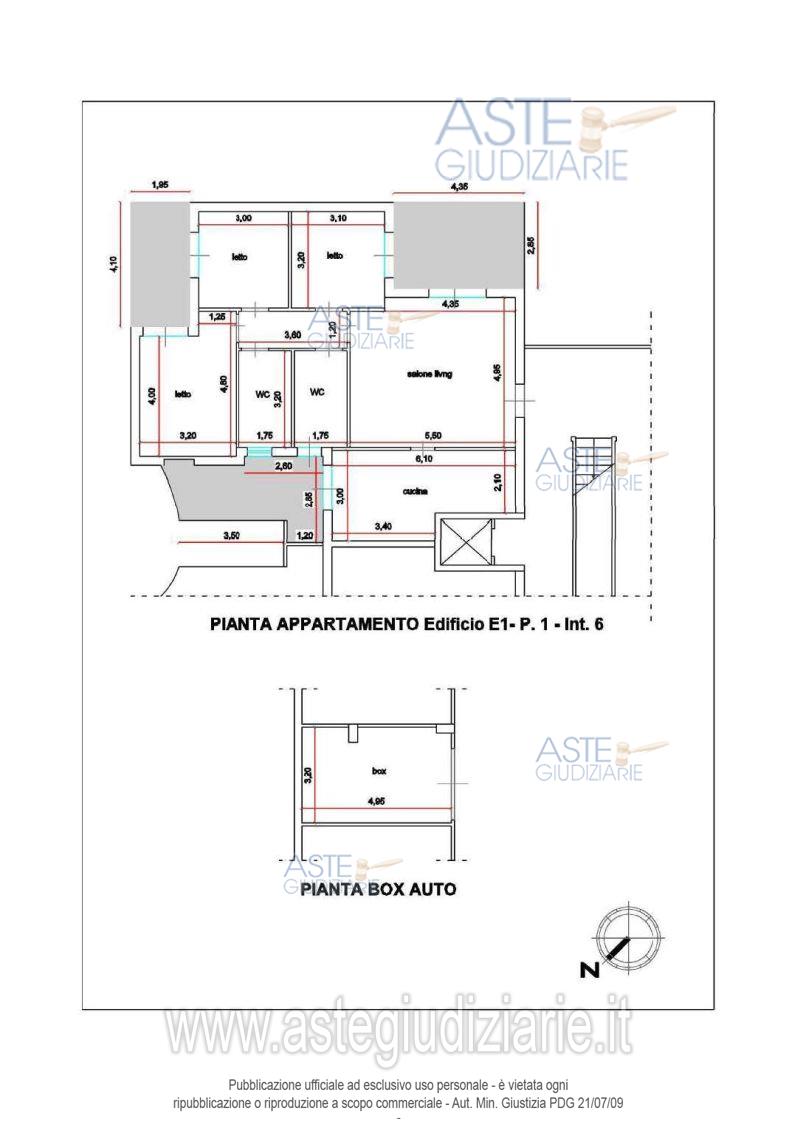
Vendita all'asta Senza incanto, con gara telematica asincrona - LOTTO UNICO: Proprietà superficiaria di porzione immobiliare costituita dall’appartamento al piano primo, scala A, int. 6 e box auto al piano seminterrato distinto con il n. 14 del fabbricato “E1”, compreso nel lotto “E” del complesso edilizio “Parco Nettuno”; l’unità abitativa con triplice esposizione è composta da salone, cucina, tre camere da letto e due bagni, per una superficie commerciale di 115 mq. Prezzo base € 118.000,00 (offerta minima € 88.500,00). Data inizio operazioni di vendita: 16/12/2025 ore 15:00. Giudice Monica Marrazzo. Professionista delegato alla vendita Avv. Lucio Basilone - Email "basilonet@alice.it"; Cell. 3381726874. Custode Giudiziario Avv. Lucio Basilone - Email "basilonet@alice.it"; Cell. 3381726874. Rif. Tribunale di Napoli Nord - Espropriazione immobiliare (cartabia) n. 228/2023

Superficie 115,00 mq
Vani 6,00
Bagni
Piano 0

Tipologia di vendita Giudiziaria
Modalità di vendita Asincrona telematica
Termine presentazione offerte 15/12/2025 ore 23:59
Data e ora inizio gara 16/12/2025 ore 15:00
Codice ID astegiudiziarie.it 4336196
6,00
115,00
0
€ 118.000

Ti interessa questa vendita?

north_east

Clicca qui per essere indirizzato alla scheda sul sito di provenienza

Bene di astegiudiziarie.it