highlight_off
Riferimento annuncio 310665 info

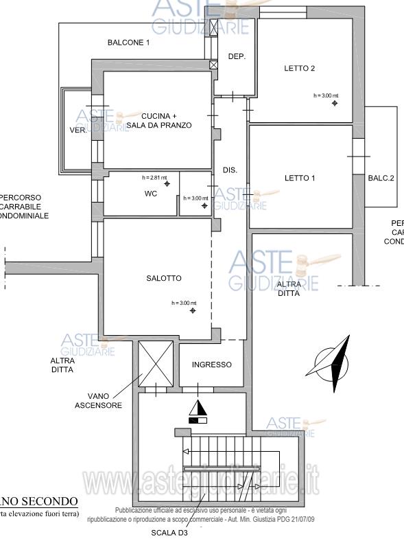
Appartamento Via Fratelli Bandiera n.13, 95030 Gravina di Catania (CT)

5,50
104,00
0
€ 85.000
Vendita all'asta Senza incanto, con gara telematica sincrona mista - LOTTO UNICO: Appartamento sito in Gravina di Catania (CT), Via Fratelli Bandiera n.13, Scala D/3, posto al piano secondo, avente superficie commerciale di mq. 104,93 c.ca, identificato al N.C.E.U. del Comune di Gravina di Catania al foglio 6, particella 793 (già particella 653), sub. 11, cat. A/2, classe 4, vani 5,5, rendita catastale € 426,08. Prezzo base € 85.000,00 (offerta minima € 63.750,00). Data vendita 14/10/2025 ore 16:00. Professionista delegato alla vendita Avv. Mariangela Seminara - Email "avv.mariangelaseminara@gmail.com"; Cell. 3386203800; Tel. 0952163386. Custode Giudiziario Avv. Mariangela Seminara - Email "avv.mariangelaseminara@gmail.com"; Cell. 3386203800; Tel. 0952163386. Rif. Tribunale di Catania - Esecuzione immobiliare post legge 80 n. 1341/2012

Superficie 104,00 mq
Vani 5,50
Bagni
Piano 0

Tipologia di vendita Giudiziaria
Modalità di vendita Sincrona mista
Termine presentazione offerte 13/10/2025 ore 13:00
Data e ora inizio gara 14/10/2025 ore 16:00
Codice ID astegiudiziarie.it 4332126
5,50
104,00
0
€ 85.000

Ti interessa questa vendita?

north_east

Clicca qui per essere indirizzato alla scheda sul sito di provenienza

Bene di astegiudiziarie.it