highlight_off
Riferimento annuncio 315560 info

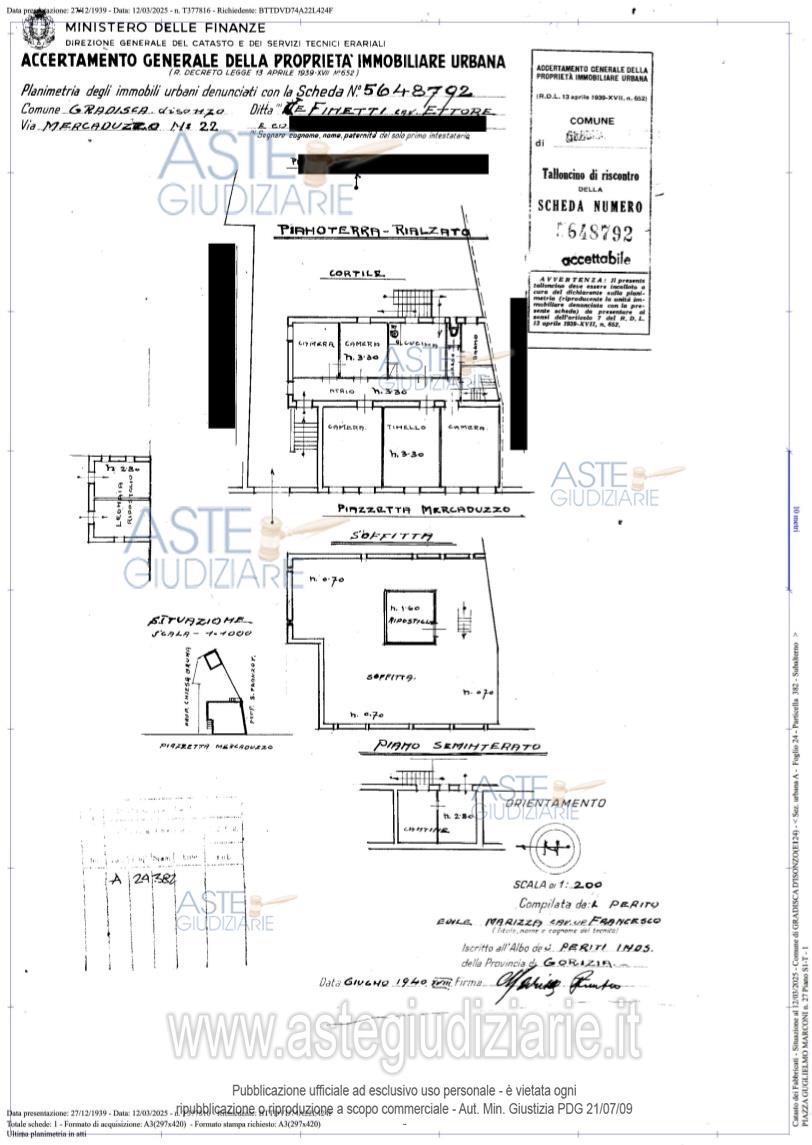
Appartamento Piazza Guglielmo Marconi 27, 34072 Gradisca d'Isonzo (GO)

9,00
273,00
0
€ 216.000
Vendita all'asta Senza incanto, con gara telematica sincrona mista - LOTTO 3: bchjdf. Prezzo base € 216.000,00 (offerta minima € 162.000,00). Data vendita 02/12/2025 ore 12:00. Giudice Martina Ponzin. Professionista delegato alla vendita Avv. Roberto Antonio Brigante - Email "roberto@brigante.eu". Custode Giudiziario Avv. Roberto Antonio Brigante - Email "ro.brigante@studiobrigante.it"; Tel. 0481412818. Rif. Tribunale di Gorizia - Espropriazione immobiliare (cartabia) n. 8/2025

Superficie 273,00 mq
Vani 9,00
Bagni
Piano 0

Tipologia di vendita Giudiziaria
Modalità di vendita Sincrona mista
Termine presentazione offerte 28/11/2025 ore 12:00
Data e ora inizio gara 02/12/2025 ore 12:00
Codice ID astegiudiziarie.it 4335803
9,00
273,00
0
€ 216.000

Ti interessa questa vendita?

north_east

Clicca qui per essere indirizzato alla scheda sul sito di provenienza

Bene di astegiudiziarie.it