highlight_off
Riferimento annuncio 333383 info

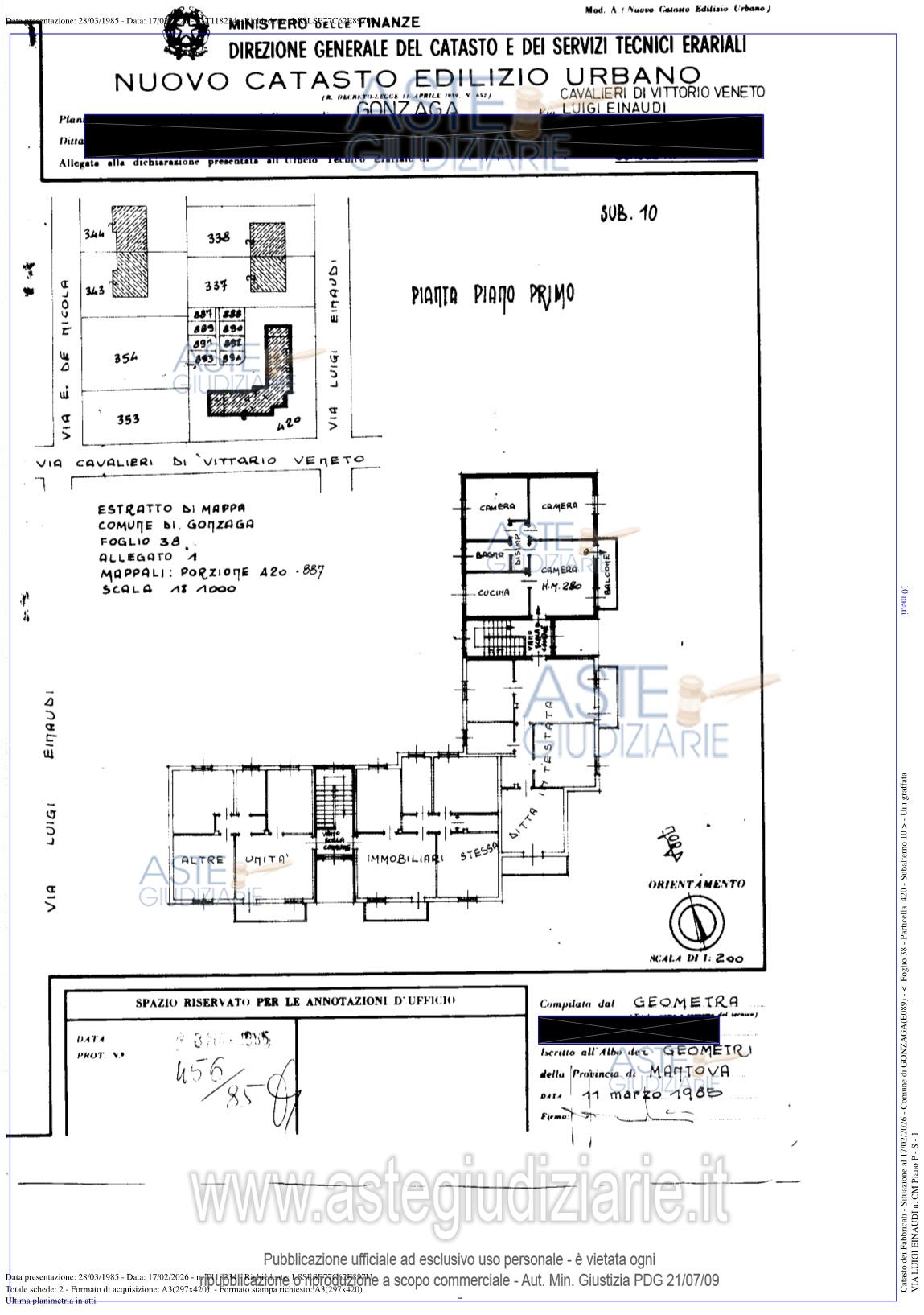
Appartamento Via Luigi Einaudi, 24, 46023 Gonzaga MN, Italia, 46023 Gonzaga (MN)

109,00
0
€ 66.300
Vendita all'asta Senza incanto, con gara telematica sincrona mista - LOTTO 1: Intera piena proprietà di : Bene 1:appartamento posto al piano primo di fabbricato condominiale e composto da ingresso-soggiorno, cucina, disimpegno, bagno, due camere da letto e balcone; con annessa area cortiliva posta al piano terra;Bene n. 2: Garage posto al piano seminterrato del medesimo fabbricato condominiale. Prezzo base € 66.300,00 (offerta minima € 49.725,00). Data vendita 25/06/2026 ore 15:00. Professionista delegato alla vendita: Dott. Francesca Freddi - Email "francesca@studiofreddi.com"; Cell. 335/7665431. Custode Giudiziario: So.Ve.Mo Srl - Email "immobiliaremantova@sovemo.com"; Tel. 0376/220694. Rif. Tribunale di Mantova - Esecuzione immobiliare post legge 80 n. 92/2019

Superficie 109,00 mq
Vani
Bagni
Piano 0

Tipologia di vendita Giudiziaria
Modalità di vendita Sincrona mista
Termine presentazione offerte 01/01/1900 ore 00:00
Data e ora inizio gara 25/06/2026 ore 15:00
Codice ID astegiudiziarie.it 4350725
109,00
0
€ 66.300

Ti interessa questa vendita?

north_east

Clicca qui per essere indirizzato alla scheda sul sito di provenienza

Bene di astegiudiziarie.it