Riferimento annuncio 279150
        
    
    Appartamento VIA ORISTANO N. 5, 09035 Gonnosfanadiga (SU)
                
                8,50
            
            
                
                171,00
            
            
                
                0
            
        
€ 46.512    
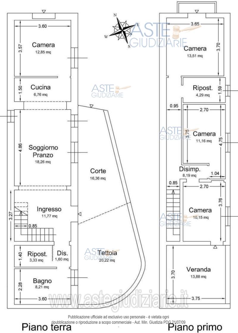
                Vendita all'asta Senza incanto, con gara telematica asincrona - LOTTO UNICO:  Quota pari a 1/1 del diritto di proprietà in Comune di Gonnosfanadiga in via Oristano n.5, distinta al NCEU al Foglio 2 Sezione F Mappale 2076 Subalterno 3 (categoria A/4, classe 2, vani 8.5, superficie catastale 171 mq). Prezzo base € 46.512,00 (offerta minima € 34.884,00). Data inizio operazioni di vendita: 17/12/2025 ore 17:00. Giudice Valentina Frongia. Professionista delegato alla vendita Dott. Gaia Grauso - Tel. 070669566. Custode Giudiziario  Ivg Cagliari - Email "ivg.visiteimmobili@tiscali.it"; Tel. 0702299036.  Rif. Tribunale di Cagliari - Esecuzione immobiliare post legge 80 n. 307/2022
            
   
| Superficie | 171,00 mq | 
|---|---|
| Vani | 8,50 | 
| Bagni | |
| Piano | 0 | 
| Tipologia di vendita | Giudiziaria | 
|---|---|
| Modalità di vendita | Asincrona telematica | 
| Termine presentazione offerte | 16/12/2025 ore 17:00 | 
| Data e ora inizio gara | 17/12/2025 ore 17:00 | 
 
                         
                         
                         
                         
                         
                         
                         
                         
                         
                         
                         
                         
                         
                         
                         
                         
                         
                         
                         
                         
                         
                         
                         
                         
                         
                         
                         
                         
                         
                         
                         
                         
                         
                         
                        