highlight_off
Riferimento annuncio 279169 info

Appartamento VIA ORISTANO N. 5, 09035 Gonnosfanadiga (VS)

8,50
171,00
0
€ 37.210
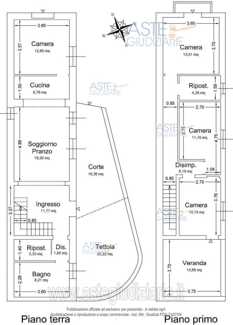
Vendita all'asta Senza incanto, con gara telematica asincrona - LOTTO UNICO: Quota pari a 1/1 del diritto di proprietà in Comune di Gonnosfanadiga in via Oristano n.5, distinta al NCEU al Foglio 2 Sezione F Mappale 2076 Subalterno 3 (categoria A/4, classe 2, vani 8.5, superficie catastale 171 mq). Prezzo base € 37.209,60 (offerta minima € 27.907,20). Data inizio operazioni di vendita: 27/05/2026 ore 17:00. Giudice: Valentina Frongia. Professionista delegato alla vendita: Dott. Gaia Grauso - Tel. 070/669566. Custode Giudiziario: Ivg Cagliari - Email "ivg.visiteimmobili@tiscali.it"; Tel. 070/2299036. Rif. Tribunale di Cagliari - Esecuzione immobiliare post legge 80 n. 307/2022

Superficie 171,00 mq
Vani 8,50
Bagni
Piano 0

Tipologia di vendita Giudiziaria
Modalità di vendita Asincrona telematica
Termine presentazione offerte 26/05/2026 ore 17:00
Data e ora inizio gara 27/05/2026 ore 17:00
Codice ID astegiudiziarie.it 4307702
8,50
171,00
0
€ 37.210

Ti interessa questa vendita?

north_east

Clicca qui per essere indirizzato alla scheda sul sito di provenienza

Bene di astegiudiziarie.it