highlight_off
Riferimento annuncio 331437 info

Appartamento Via Casacelle,.52-54, 80014 Giugliano in Campania (NA)

6,50
153,00
0
€ 185.000
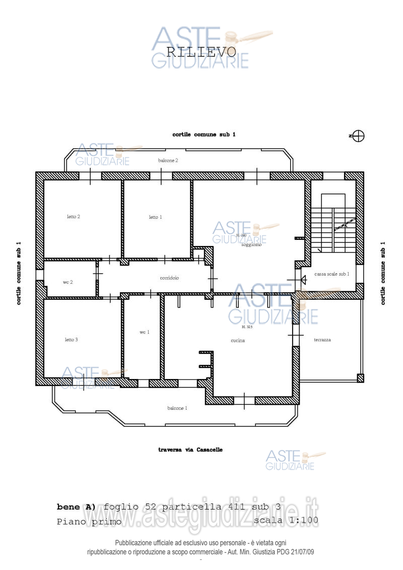
Vendita all'asta Senza incanto, con gara telematica asincrona - LOTTO 1: Piena ed intera proprietà di unità immobiliare ad uso abitativo composta da soggiorno, cucina, corridoio, tre camere da letto, due wc, due balconi ed una ampia terrazza. Presenti abusi. L’immobile è occupato sine titulo da terzo dietro versamento di una indennità di occupazione di € 300,00 mensili. Sarà liberato dal custode su richiesta dell’aggiudicatario. Prezzo base € 185.000,00 (offerta minima € 138.750,00). Data inizio operazioni di vendita: 09/06/2026 ore 15:00. Giudice: Annamaria Buffardo. Professionista delegato alla vendita: Avv. Rita Vaccaro. Custode Giudiziario: Avv. Rita Vaccaro - Email "avv.ritavaccaro.deleghe@gmail.com". Rif. Tribunale di Napoli Nord - Espropriazione immobiliare (cartabia) n. 392/2024

Superficie 153,00 mq
Vani 6,50
Bagni
Piano 0

Tipologia di vendita Giudiziaria
Modalità di vendita Asincrona telematica
Termine presentazione offerte 08/06/2026 ore 23:59
Data e ora inizio gara 09/06/2026 ore 15:00
Codice ID astegiudiziarie.it 4349237
6,50
153,00
0
€ 185.000

Ti interessa questa vendita?

north_east

Clicca qui per essere indirizzato alla scheda sul sito di provenienza

Bene di astegiudiziarie.it