highlight_off
Riferimento annuncio 227174 info

Appartamento Via Licola Mare 75, 80014 Giugliano in Campania (NA)

6,00
86,00
2
€ 14.096
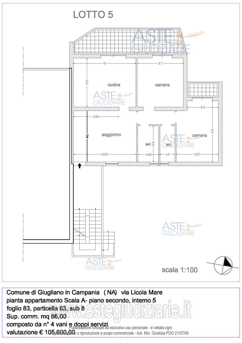
Vendita all'asta Senza incanto, con gara telematica asincrona - LOTTO 5: Appartamento al Fabbricato B, piano secondo, interno 6, composto da salone, due camere, cucina living, due bagni, oltre balconata. Prezzo base € 14.095,89 (offerta minima € 10.571,92). Data inizio operazioni di vendita: 21/04/2026 ore 14:30. Professionista delegato alla vendita Avv. Pasquale Borrelli - Email "avvborrelli@yahoo.it"; Tel. 0815521624. Custode Giudiziario Avv. Pasquale Borrelli - Email "avvborrelli@yahoo.it"; Tel. 0815521624. Rif. Tribunale di Napoli - Esecuzione immobiliare post legge 80 n. 349/2009

Superficie 86,00 mq
Vani 6,00
Bagni
Piano 2

Tipologia di vendita Giudiziaria
Modalità di vendita Asincrona telematica
Termine presentazione offerte 20/04/2026 ore 23:59
Data e ora inizio gara 21/04/2026 ore 14:30
Codice ID astegiudiziarie.it 242265
6,00
86,00
2
€ 14.096

Ti interessa questa vendita?

north_east

Clicca qui per essere indirizzato alla scheda sul sito di provenienza

Bene di astegiudiziarie.it