highlight_off
Riferimento annuncio 230950 info

Appartamento Via Tre Palmenti, 89013 Gioia Tauro RC, Italia, 89013 Gioia Tauro (RC)

0
€ 12.558
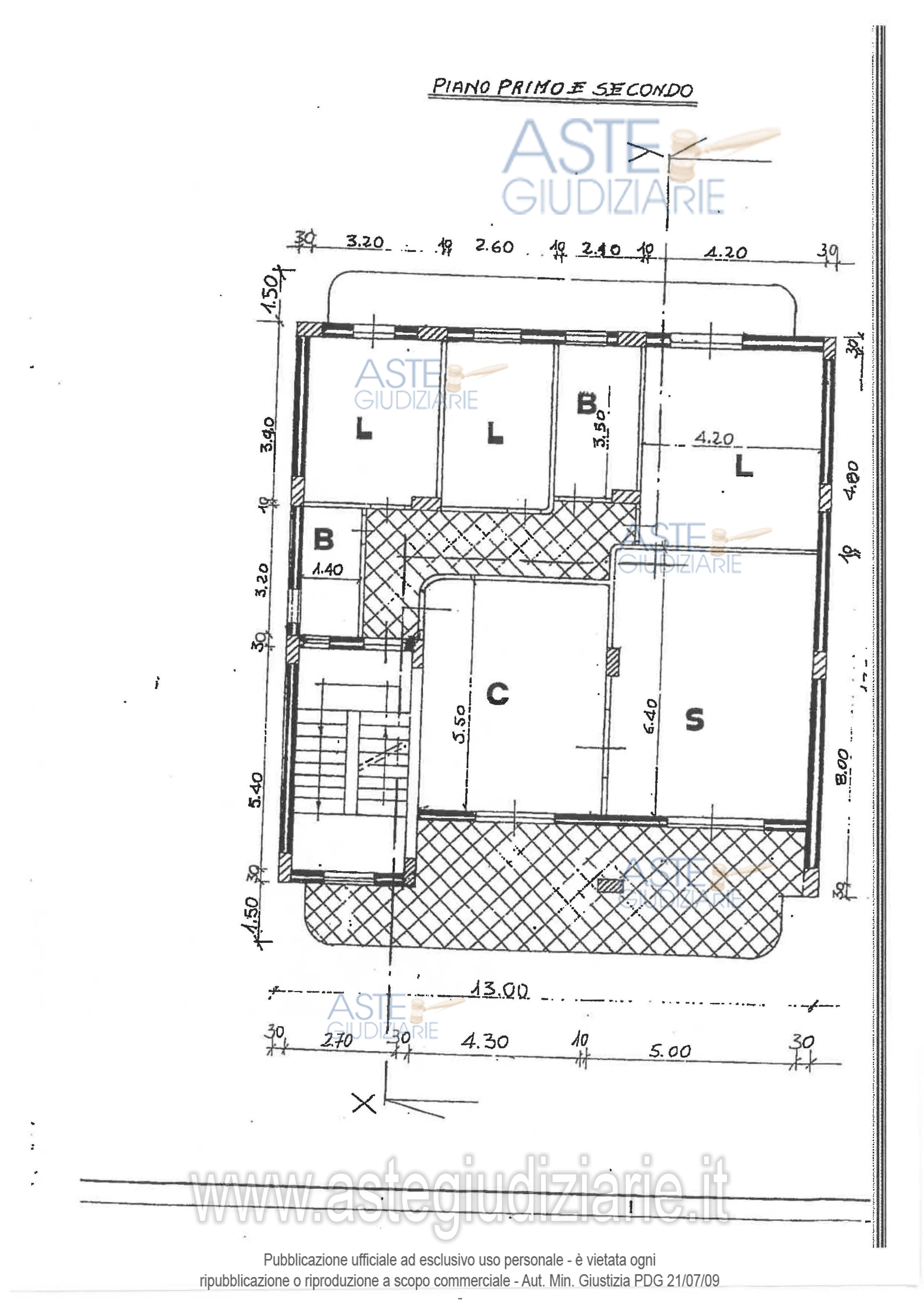
Vendita all'asta Senza incanto, con gara telematica asincrona - LOTTO 2: Appartamento catastalmente in corso di costruzione ma di fatto completamente ultimato. Prezzo base € 12.557,90 (offerta minima € 9.418,43). Data inizio operazioni di vendita: 17/12/2025 ore 11:00. Giudice Dott. Marta Caineri. Professionista delegato alla vendita Not. Concetta Maria Costa - Email "ccosta@notariato.it"; Cell. 3423419332; Tel. 096621274. Custode Giudiziario Not. Concetta Maria Costa - Email "ccosta@notariato.it"; Cell. 3423419332; Tel. 096621274. Rif. Tribunale di Palmi - Esecuzione immobiliare post legge 80 n. 81/2008

Superficie mq
Vani
Bagni
Piano 0

Tipologia di vendita Giudiziaria
Modalità di vendita Asincrona telematica
Termine presentazione offerte 16/12/2025 ore 12:00
Data e ora inizio gara 17/12/2025 ore 11:00
Codice ID astegiudiziarie.it 4222334
0
€ 12.558

Ti interessa questa vendita?

north_east

Clicca qui per essere indirizzato alla scheda sul sito di provenienza

Bene di astegiudiziarie.it