highlight_off
Riferimento annuncio 301155 info

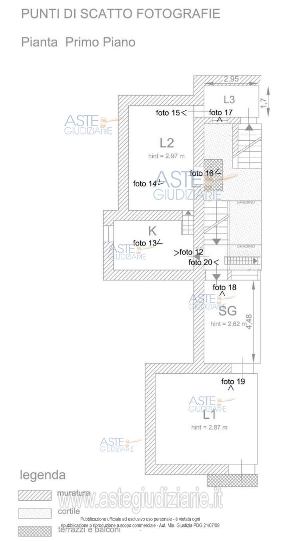
Appartamento Via Crescenzo Delle Donne, 9-11, 84095 Giffoni Valle Piana (SA)

5,00
101,57
0
€ 29.367
Vendita all'asta Senza incanto, con gara telematica asincrona - LOTTO UNICO: PIENA PROPRIETÀ di abitazione civile ubicata nel Via Crescenzo Delle Donne 9-11. Prezzo base € 29.366,50 (offerta minima € 22.025,00). Data inizio operazioni di vendita: 26/02/2026 ore 17:00. Giudice Dott. Francesca Sicilia. Professionista delegato alla vendita Dott. Enrico Rocco. Custode Giudiziario Dott. Enrico Rocco - Email "studioroccoenrico@gmail.com"; Cell. 3296297376; Tel. 089227951. Rif. Tribunale di Salerno - Esecuzione immobiliare post legge 80 n. 307/2017

Superficie 101,57 mq
Vani 5,00
Bagni
Piano 0

Tipologia di vendita Giudiziaria
Modalità di vendita Asincrona telematica
Termine presentazione offerte 25/02/2026 ore 18:00
Data e ora inizio gara 26/02/2026 ore 17:00
Codice ID astegiudiziarie.it 4255974
5,00
101,57
0
€ 29.367

Ti interessa questa vendita?

north_east

Clicca qui per essere indirizzato alla scheda sul sito di provenienza

Bene di astegiudiziarie.it