highlight_off
Riferimento annuncio 318155 info

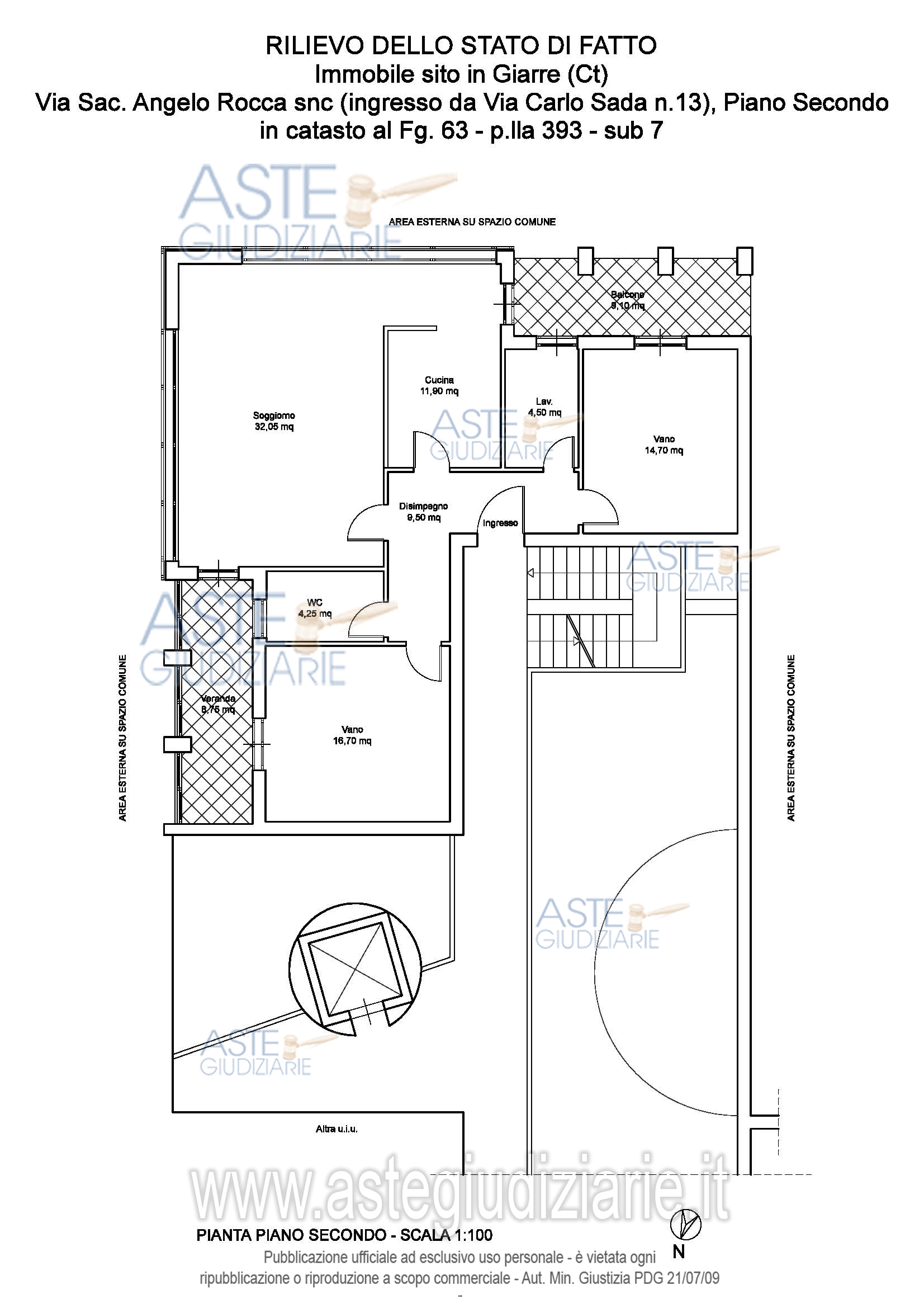
Appartamento Via Sacerdote Angelo Rocca, SNC, 95014 Giarre (CT)

4,50
96,00
2
2
€ 103.000
Vendita all'asta Senza incanto, con gara telematica sincrona - LOTTO UNICO: Lotto unico composto da appartamento al piano secondo di vani 4,5 e garage al piano primo sottostrada di circa 18 metri quadrati. Prezzo base € 103.000,00 (offerta minima € 77.250,00). Data vendita 23/01/2026 ore 09:30. Giudice Dott. Nelly Gaia Mangiameli. Professionista delegato alla vendita Avv. Alfio Grasso - Email "avec2016@outlook.it". Custode Giudiziario Avv. Alfio Grasso - Email "avec2016@outlook.it". Rif. Tribunale di Catania - Esecuzione immobiliare post legge 80 n. 498/2018

Superficie 96,00 mq
Vani 4,50
Bagni 2
Piano 2

Tipologia di vendita Giudiziaria
Modalità di vendita Sincrona telematica
Termine presentazione offerte 01/01/1900 ore 00:00
Data e ora inizio gara 23/01/2026 ore 09:30
Codice ID astegiudiziarie.it 4337960
4,50
96,00
2
2
€ 103.000

Ti interessa questa vendita?

north_east

Clicca qui per essere indirizzato alla scheda sul sito di provenienza

Bene di astegiudiziarie.it