highlight_off
Riferimento annuncio 318010 info

Appartamento Via Luigi Cagnola, 9 24050 Ghisalba BG, Italia, 24050 Ghisalba (BG)

0
€ 685.660
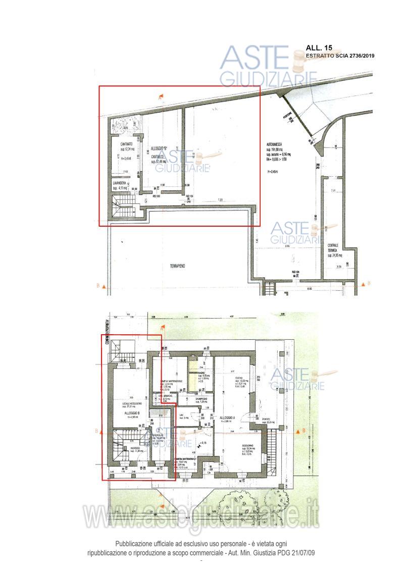
Vendita all'asta Senza incanto, con gara telematica asincrona - LOTTO 1: Piena proprietà di appartamento, cantina, autorimessa e area pertinenziale. Prezzo base € 685.660,00 (offerta minima € 514.245,00). Data inizio operazioni di vendita: 16/12/2025 ore 10:00. Professionista delegato alla vendita Avv. Roberto Caramanti - Email "caramantiroberto@gmail.com"; Tel. 035245240. Custode Giudiziario Avv. Roberto Caramanti - Email "caramantiroberto@gmail.com"; Tel. 035245240. Rif. Tribunale di Bergamo - Espropriazione immobiliare (cartabia) n. 414/2024

Superficie mq
Vani
Bagni
Piano 0

Tipologia di vendita Giudiziaria
Modalità di vendita Asincrona telematica
Termine presentazione offerte 01/01/1900 ore 00:00
Data e ora inizio gara 16/12/2025 ore 10:00
Codice ID astegiudiziarie.it 4337570
0
€ 685.660

Ti interessa questa vendita?

north_east

Clicca qui per essere indirizzato alla scheda sul sito di provenienza

Bene di astegiudiziarie.it